Сервис

8 (800) 300 61 76
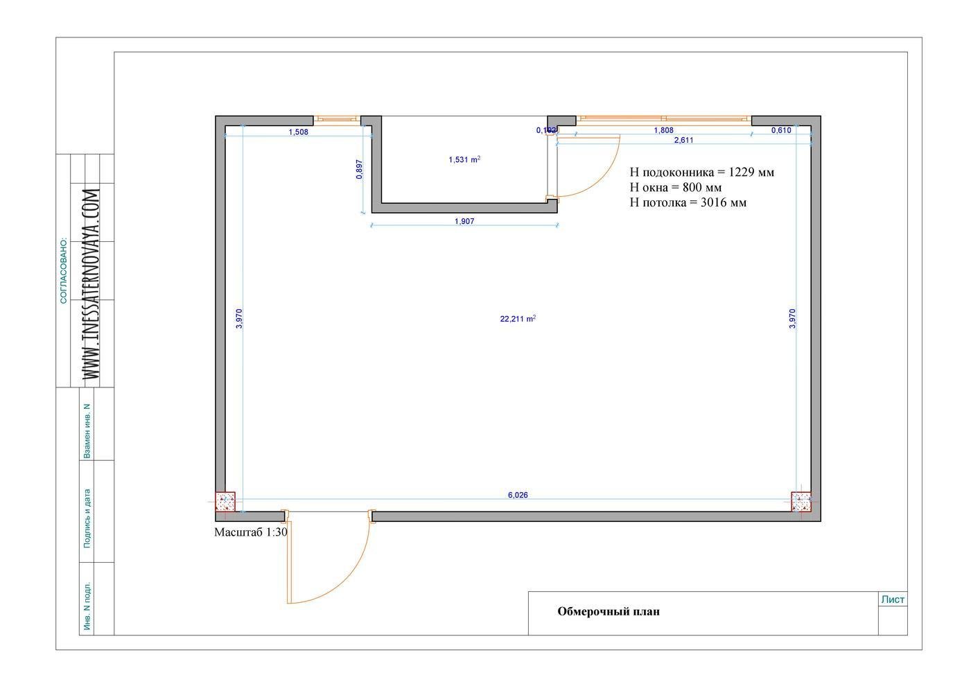
Фотография: Планировки в стиле , Современный, Квартира, Студия, Проект недели, Эко, Сочи, Инесса Терновая, Монолитный дом, до 40 метров – фото на INMYROOM
Закрыть
Mariya Stepanova
Журналист
4,6
– 19 отзывов
Гамма
Другие фото в этом проекте
Сохранить
Подобрать товары
Закрыть
Информация