Сервис

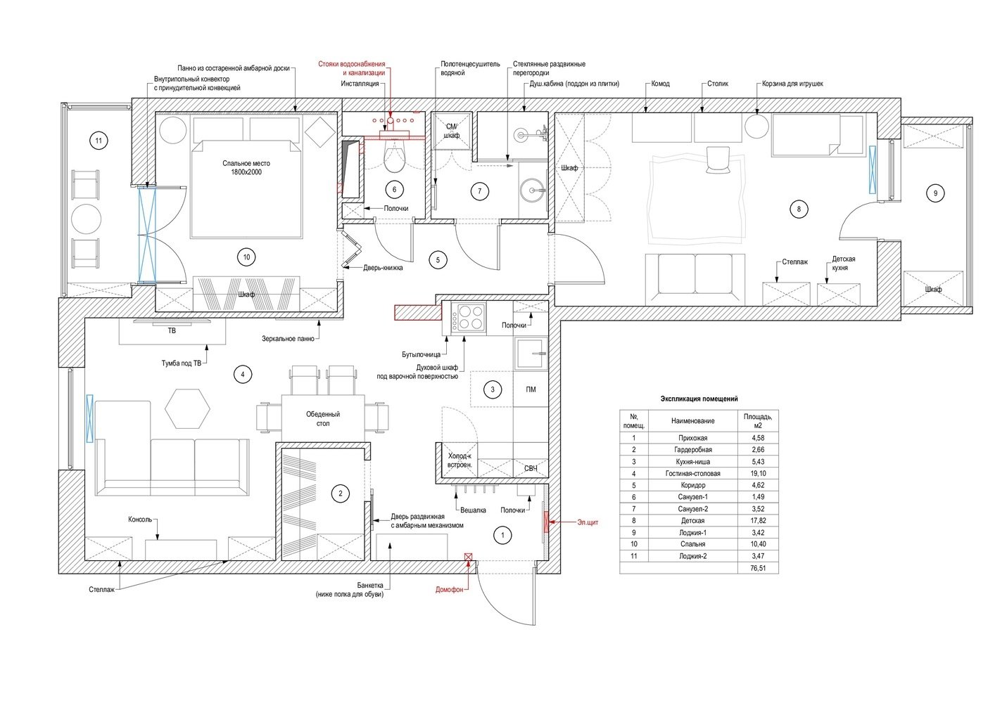
План с расстановкой мебели
Закрыть
Ирина Собыленская
Дизайнер интерьера
4,8
– 129 отзывов
Гамма
Другие фото в этом проекте
Сохранить
Подобрать товары
Закрыть
Информация