
Закрыть
Ирина Собыленская
Дизайнер интерьера
Фото из статьи
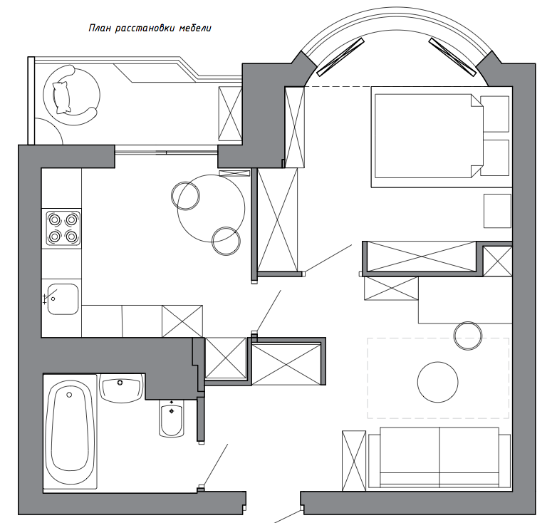
Как круто превратили тесную однушку в комфортную двушку4,6
– 128 отзывов
Гамма
Другие фото в этом проекте
Сохранить
Подобрать товары
Закрыть
Сервис

Разрешить использование cookies?
Мы используем cookies для удобства и персонализации. Подробности в Политике конфиденциальности. Согласие можно отозвать в любой момент.