
Закрыть
Татьяна Филиппова Filippova
Фото из статьи
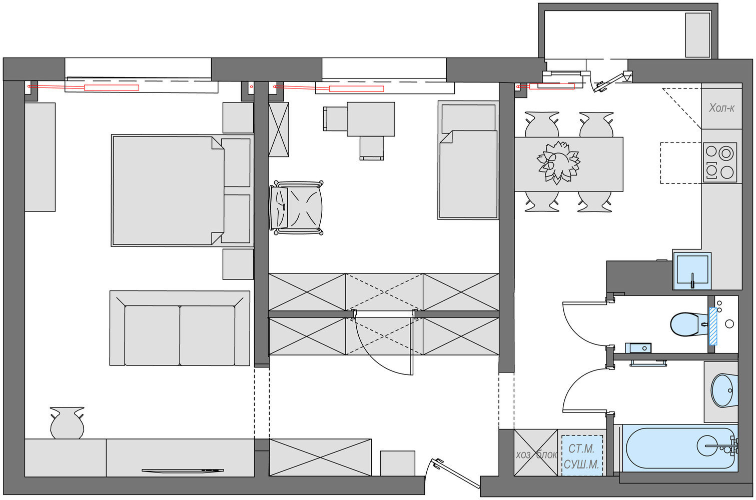
Как обустроить типовую двушку в панельном доме4,5
– 42 отзыва
Гамма
Другие фото в этом проекте
Сохранить
Подобрать товары
Закрыть
Сервис

Разрешить использование cookies?
Мы используем cookies для удобства и персонализации. Подробности в Политике конфиденциальности. Согласие можно отозвать в любой момент.