Сервис

8 (495) 255 78 84
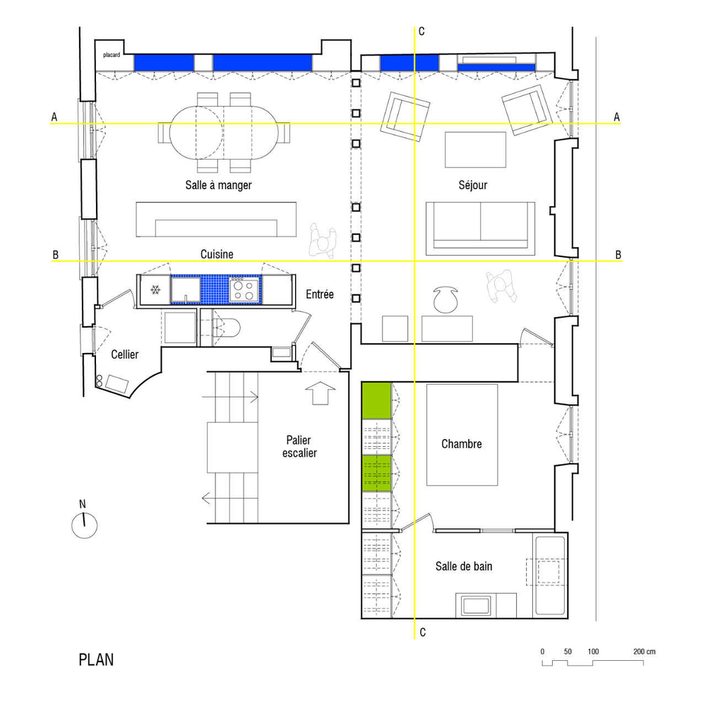
Фотография: Планировки в стиле , Квартира, Франция, Мебель и свет, Дома и квартиры, Париж – фото на INMYROOM
Закрыть
Сохранить
Подобрать товары
Закрыть
Информация