Сервис

8 (495) 255 78 84
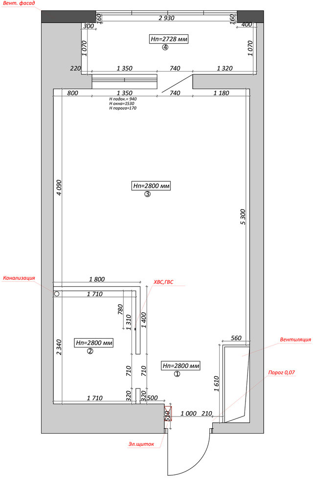
Фотография: Планировки в стиле , Современный, Малогабаритная квартира, Квартира, Студия, Проект недели, Монолитный дом, до 40 метров, Котельники, Диана Бганова – фото на INMYROOM
Закрыть
Ирина Собыленская
Дизайнер интерьера
4,8
– 20 отзывов
Гамма
Другие фото в этом проекте
Сохранить
Подобрать товары
Закрыть
Информация