Вкратце
Заказчица — молодая девушка, юрист, проживать в квартире будет с молодым человеком и кошкой. Перед дизайнером Дианой Бгановой хозяйка поставила задачу — создать максимально функциональное жилье — и написала целый список пунктов, которые необходимо было соблюсти при разработке дизайна и планировочного решения квартиры: ванная комната с полноценной ванной, зона отдыха, зона сна, кухня и обеденное место, рабочая зона, большой шкаф под весь гардероб. И все это на площади в 30 квадратных метров.
Подробности
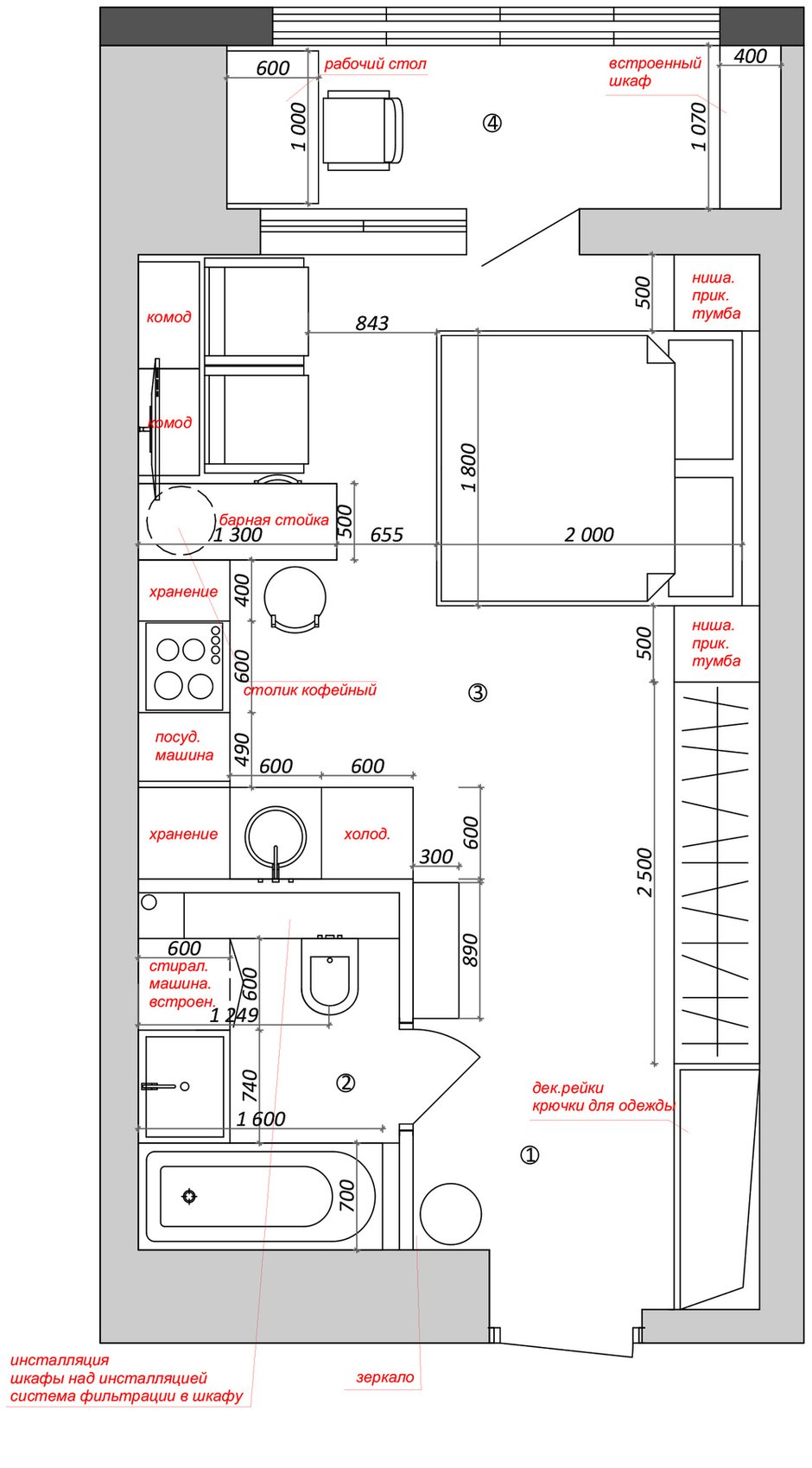
Квартира по форме представляет собой прямоугольник с окном, выходящим на балкон, поэтому света не очень много. Жилые зоны разместили ближе к окну, а системы хранения — ближе к входу. Балкон утеплили и разместили на нем небольшой рабочий кабинет, а также поставили шкаф.
В ванной комнате перенесли дверной проем для того, чтобы разместить полноценную ванну, тумбу со встроенной стиральной машиной и унитаз с инсталляцией. Над унитазом сделали шкаф для хранения бытовой химии, шампуней, гелей для душа. Там же спрятали систему глубокой фильтрации воды по всей квартире.
«Изначально, когда заказчица обратилась ко мне за проектом, она смирилась с мыслью, что купит диван и будет спать на нем. Но я нашла более удачное решение — разместить полноценную кровать в шкафу: ее мы заказали по индивидуальным чертежам и эскизам у местного производителя мебели. Одну часть шкафа занимает кровать, а вторую — большой шкаф-гардероб, от пола до потолка. По обе стороны от кровати также расположены две секции шкафа, в каждой из которых выполнены ниши, несущие функцию прикроватных тумб», — рассказывает Диана Бганова.
В небольшой кухне расположили все необходимое: встроенный холодильник, духовой шкаф, варочную поверхность, встроенную микроволновую печь, которая прячется за верхним фасадом кухни, и встроенную посудомоечную машину.
Вместо стола в проекте использована барная стойка, за ней спокойно могут разместиться два человека. Рядом с барной стойкой размещены два комода из ИКЕА, над ними телевизор и большое зеркало — оно визуально расширяет пространство.
«Так как от дивана мы отказались в пользу кровати, я предложила поставить два небольших кресла и кофейные столики, чтобы создать зону отдыха перед телевизором. Кстати говоря, кресла нетяжелые и компактные, поэтому их можно легко передвинуть к комоду в то время, когда кровать разложена, а кофейные столики поставить под барную стойку», — рассказывает дизайнер.
В санузле использовали керамогранит и керамическую плитку. В остальной части квартиры стены под покраску. «Мы сразу отказались от идеи с обоями, так как кошка заказчицы очень любит поточить когти о стены, — говорит Диана Бганова. — Поэтому все стены покрасили износостойкой, антивандальной краской Tikkurila».
Благодаря светлой цветовой палитре удалось не перегрузить маленькое пространство и создать эффект «воздуха». В качестве яркого акцента использовали светло-коралловый и пыльно-бирюзовый оттенки в обивке стульев, подушек и декоре. Они сделали обстановку более жизнерадостной и уютной.
Планировка
Бренды, представленные в проекте
Холл
Отделка: краска, Tikkurila
Напольное покрытие: керамогранит, Alaplana
Мебель: обувница, ИКЕА
Декор: декоративные рейки, Bleek; картина, Halfoften; потолочный и напольный плинтусы, «Европласт»
Освещение: потолочный встраиваемый светильник, Arte Lamp
Кухня-гостиная-спальня
Отделка: керамогранит, Alaplana; краска, Tikkurila
Напольное покрытие: ламинат, Egger
Декор: потолочный и напольный плинтусы, «Европласт»
Освещение: подвесной светильник, Cosmo; потолочный встраиваемый светильник, Arte Lamp
Ванная комната
Отделка: керамогранит, Alaplana; керамогранит, Argenta; керамическая плитка, Equipe
Напольное покрытие: керамогранит, Alaplana
Санфаянс: ванна, Cersanit; унитаз и инсталляция, Roca
Смесители: душевая стойка, Wasserkraft
Освещение: накладной точечный светильник, Odeon Light
Балкон
Отделка: керамогранит, Alaplana; краска, Tikkurila
Напольное покрытие: керамогранит, Alaplana
Мебель: письменный стол, Lulustore
Текстиль: Pittera
Декор: потолочный и напольный плинтусы, молдинги, все — «Европласт»
Освещение: накладной точечный светильник, Odeon Light; рабочая лампа, ИКЕА
Хотите, чтобы ваш проект был опубликован на INMYROOM? Присылайте фотографии интерьера на wow@inmyroom.ru














