Сервис

8 (800) 300 61 76
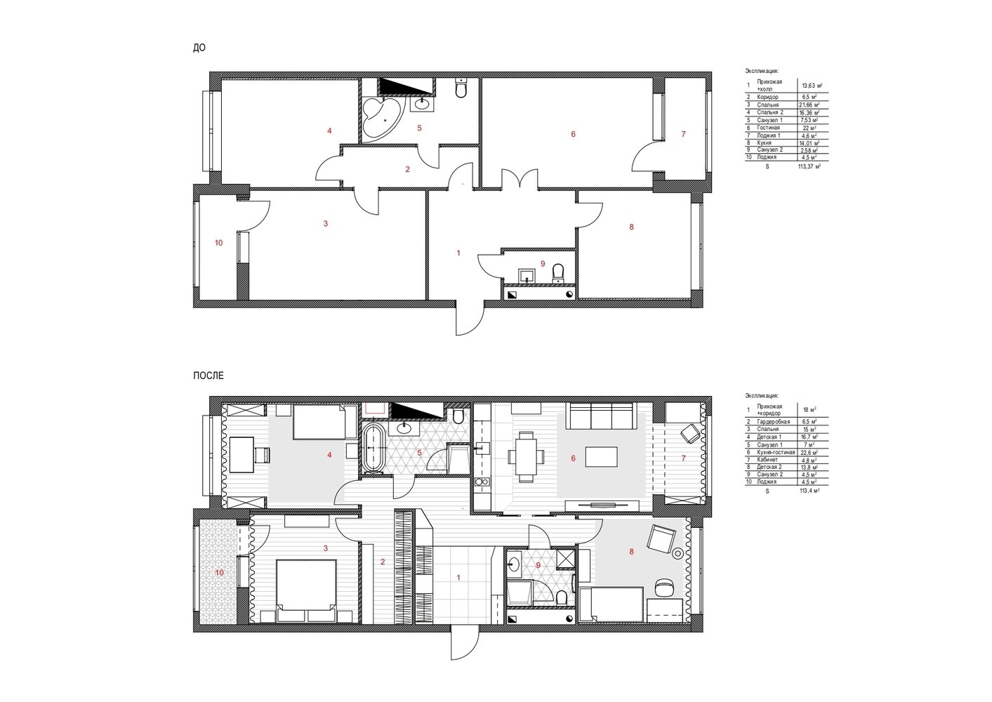
Фотография: Планировки в стиле , Современный, Квартира, Проект недели, Москва, 4 и больше, Более 90 метров, Anddesign – фото на INMYROOM
Закрыть
Ирина Собыленская
Дизайнер интерьера
4,6
– 116 отзывов
Гамма
Другие фото в этом проекте
Сохранить
Подобрать товары
Закрыть
Информация