Сервис

8 (800) 300 61 76
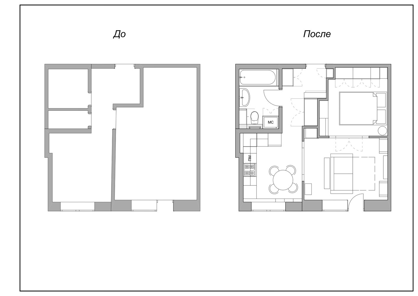
Фотография: Планировки в стиле , Квартира, Проект недели, Москва, Сталинка, Кирпичный дом, 1 комната, 2 комнаты, до 40 метров, Анна Лубкова – фото на INMYROOM
Закрыть
Ирина Собыленская
Дизайнер интерьера
4,8
– 130 отзывов
Гамма
Другие фото в этом проекте
Сохранить
Подобрать товары
Закрыть
Информация