Сервис

8 (800) 300 61 76
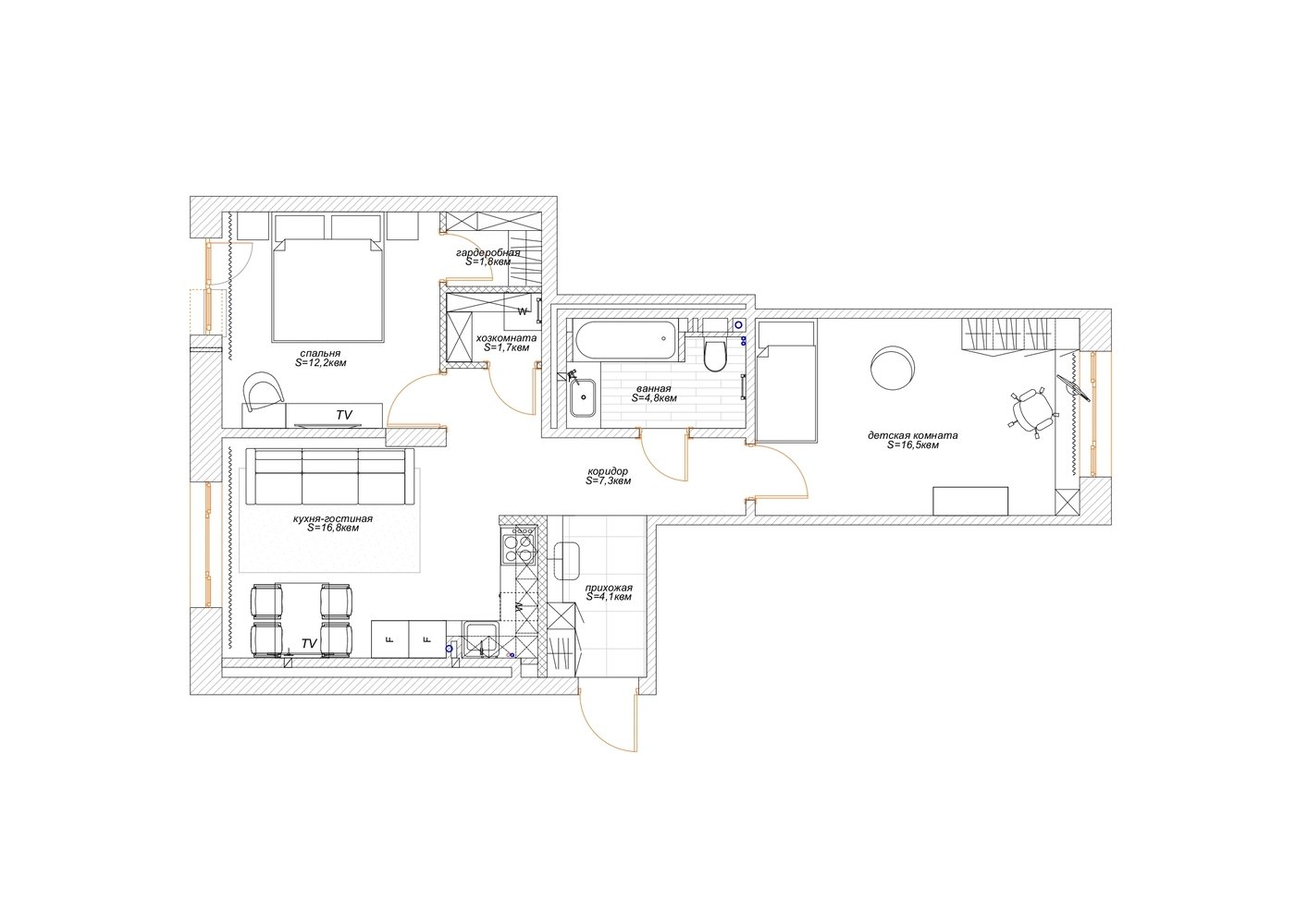
Фотография: Планировки в стиле , Современный, Квартира, Проект недели, Новосибирск, 3 комнаты, 60-90 метров, Студия 3D, Полина Марченко – фото на INMYROOM
Закрыть
Ирина Собыленская
Дизайнер интерьера
4,4
– 36 отзывов
Гамма
Другие фото в этом проекте
Сохранить
Подобрать товары
Закрыть
Информация