Сервис

8 (495) 255 78 84
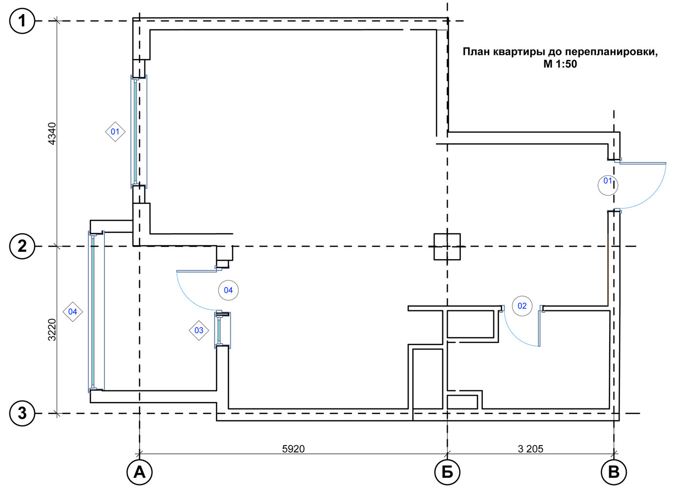
Фотография: Прочее в стиле , Квартира, Дома и квартиры, Проект недели – фото на INMYROOM
Закрыть
Tati Grebennique
Фотограф
Гамма
Другие фото в этом проекте
Сохранить
Подобрать товары
Закрыть
Информация