Сервис

8 (495) 255 78 84
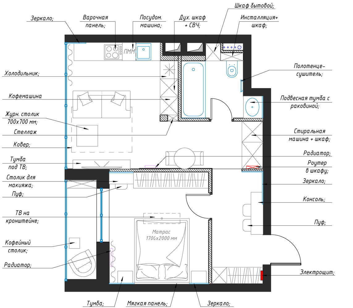
Фотография: Планировки в стиле , Современный, Квартира, Проект недели, Минск, 2 комнаты, 40-60 метров, Mood2 – фото на INMYROOM
Закрыть
Ирина Собыленская
Дизайнер интерьера
3,9
– 68 отзывов
Гамма
Другие фото в этом проекте
Сохранить
Подобрать товары
Закрыть
Информация