Сервис

8 (800) 300 61 76
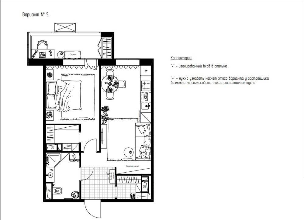
Фотография:  в стиле , Квартира, Перепланировка, 2 комнаты, 40-60 метров, Наталья Мукасьян – фото на INMYROOM
Закрыть
Даша Трилевич
Дизайнер интерьера
4,1
– 30 отзывов
Гамма
Другие фото в этом проекте
Сохранить
Закрыть
Информация