Сервис

8 (495) 255 78 84
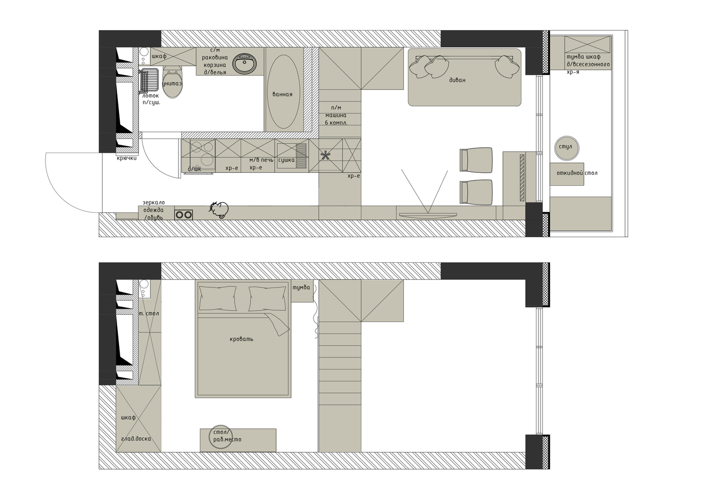
Фотография: Планировки в стиле , Лофт, Современный, Квартира, Проект недели, 2 комнаты, до 40 метров, Иркутск – фото на INMYROOM
Закрыть
Ирина Собыленская
Дизайнер интерьера
4,4
– 23 отзыва
Гамма
Другие фото в этом проекте
Сохранить
Подобрать товары
Закрыть
Информация