Сервис

8 (800) 300 61 76
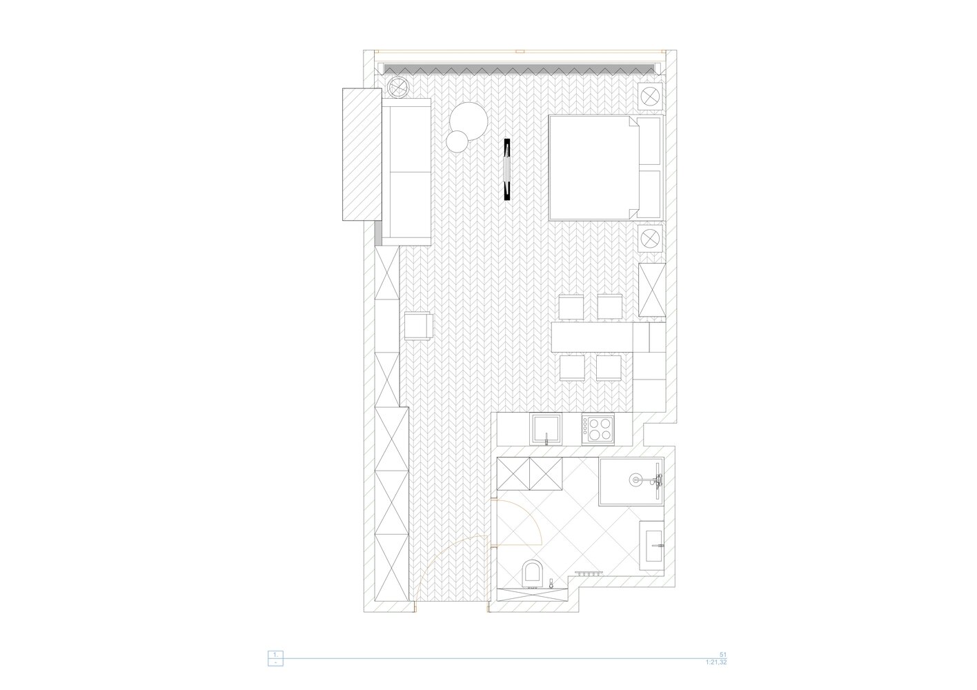
Фотография: Планировки в стиле , Лофт, Квартира, Студия, Проект недели, Москва, 40-60 метров, Яна Ухова, KLЯksa-design – фото на INMYROOM
Закрыть
Ирина Собыленская
Дизайнер интерьера
Дизайн
Яна Ухова
4,4
– 22 отзыва
Гамма
Другие фото в этом проекте
Сохранить
Подобрать товары
Закрыть
Информация