Сервис

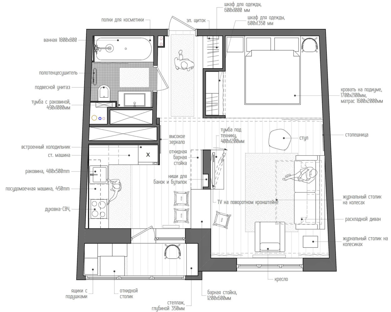
Фотография: Детская в стиле Современный, Скандинавский, Эклектика, Малогабаритная квартира, Квартира, Планировки, Мебель и свет – фото на INMYROOM
Закрыть
Евгения Назарова
5,0
– 1 отзыв
Гамма
Другие фото в этом проекте
Сохранить
Подобрать товары
Закрыть
Информация