
Закрыть
Ruslana Vitko
Журналист
Фото из статьи
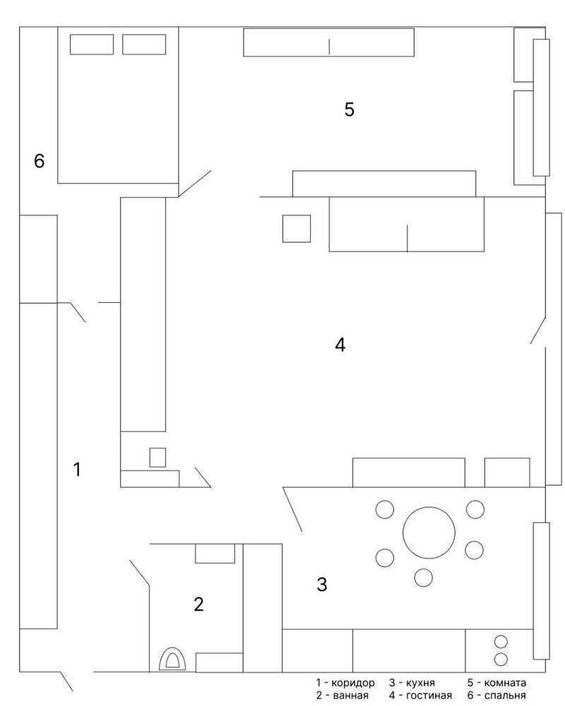
Ремонт хрущевки 44 м² своими силами: стильная и уютная двушка для семьи из шести человек4,4
– 224 отзыва
Гамма
Сохранить
Закрыть
Сервис

Разрешить использование cookies?
Мы используем cookies для удобства и персонализации. Подробности в Политике конфиденциальности. Согласие можно отозвать в любой момент.