Сервис

8 (495) 255 78 84
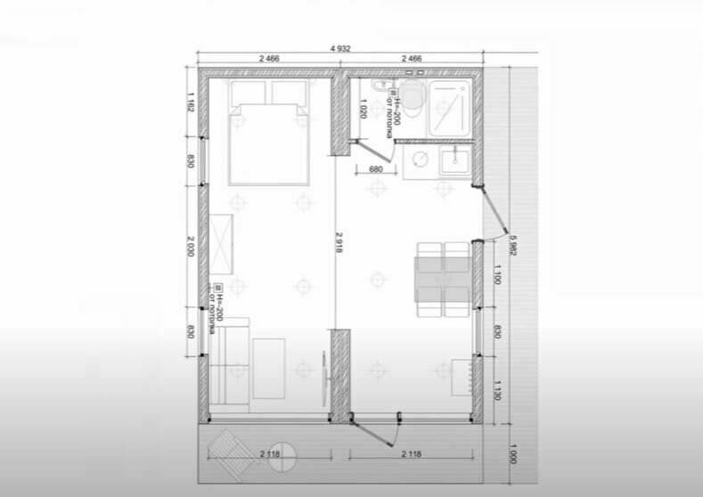
Фотография: Планировки в стиле , Студия, Дом, Минимализм, Проект недели, Дача, Дом и дача, до 40 метров, Истра – фото на INMYROOM
Закрыть
Ирина Собыленская
Дизайнер интерьера
4,4
– 125 отзывов
Гамма
Другие фото в этом проекте
Сохранить
Подобрать товары
Закрыть
Информация