
Закрыть
Ирина Собыленская
Дизайнер интерьера
Фото из статьи
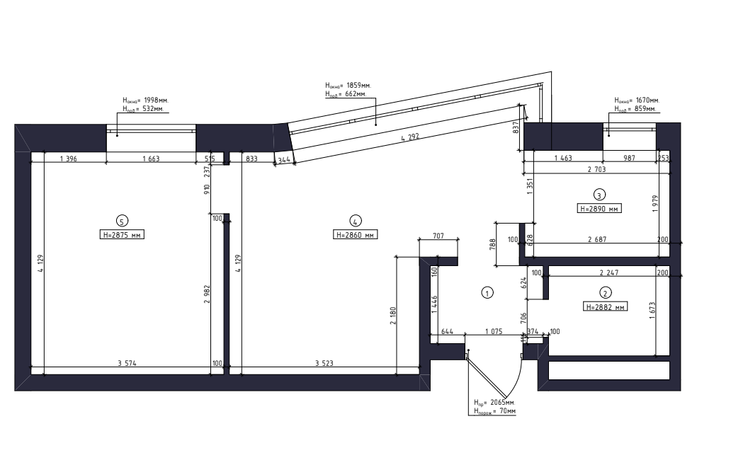
Двушка 47 м², в которой нет проблем с хранениемДизайн
Анастасия Петухова5,0
– 7 отзывов
Гамма
Другие фото в этом проекте
Сохранить
Подобрать товары
Закрыть
Сервис

Разрешить использование cookies?
Мы используем cookies для удобства и персонализации. Подробности в Политике конфиденциальности. Согласие можно отозвать в любой момент.