Вкратце
Заказчики, для которых дизайнер Анастасия Петухова оформила двухкомнатную квартиру в новостройке — молодая семейная пара с собакой породы шпиц. Ребятам хотелось получить уютный интерьер, где захочется проводить много времени, чтобы их дом стал местом спокойствия и притяжения после шумного рабочего дня. Единственные требования по функционалу: организовать зону с синтезатором в гостиной, а также спроектировать в душевой две лейки для совместного принятия душа.
Подробности
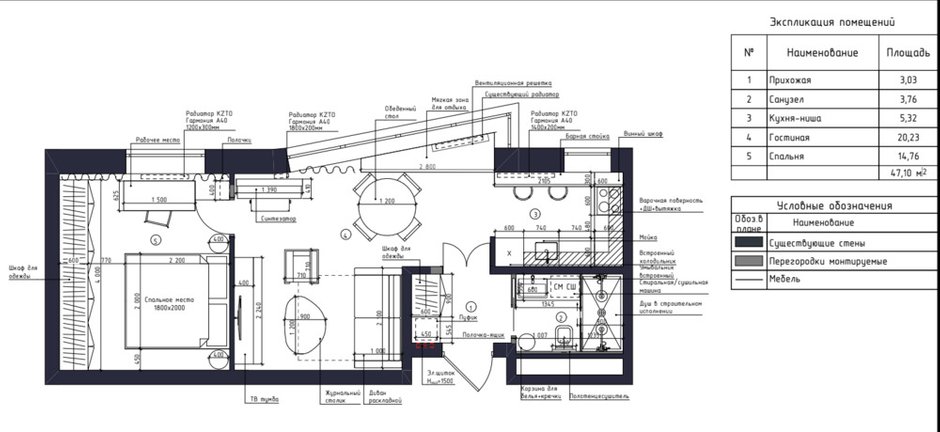
Перепланировка не потребовалась, так как квартира изначально подходила по всем требованиям заказчиков. Здесь получились отдельная спальня с рабочим столом, кухня-гостиная с местом для синтезатора (заказчик занимается музыкой, нужно было вписать в интерьер музыкальный инструмент), столовая с хорошим видом и мягкой зоной для чтения у окна.
Установили угловой гарнитур в нише, подоконник превратили в барную стойку для небольших перекусов. На полу — керамогранит с красивым узором, на фартуке — тоже керамогранит, но уже однотонный крупноформатный. Навесные шкафы — крашеный МДФ в эмали с фрезерованными фасадами. Напольные шкафы и пенал — МДФ в пленке под дерево.
«Фишка интерьера — в расположении мягкого сиденья для чтения у видового окна. Также хочется отметить, что мы старались визуально расширить пространство из-за небольшой площади объекта. Интересным решением стало добавление света за счет большого панно из состаренного зеркала в зоне гостиной», — рассказывает дизайнер.
Основная система хранения расположена в спальне — для этого спроектировали вместительный шкаф во всю длину комнаты. Он разделен на несколько секций: за стеклянными фасадами хранится одежда, за сплошными — хозблок с пылесосом, средствами для уборки.
В качестве напольного покрытия в прихожей использовали керамогранит. Стены белые, задействовали потолочный карниз со скрытой подсветкой — его выкрасили в карамельный оттенок. Ставку сделали на линейное освещение на потолке и подсветку за карнизом.
Все системы хранения изготовлены на заказ под индивидуальные размеры. В прихожей предусмотрены шкаф под верхнюю одежду и тумба под мелочи.
В отделке санузла использовали декоративную штукатурку терракотового цвета в зоне двери и белого цвета в зоне инсталляции. В душевой сочетали несколько видов плитки и керамогранита. Раковина и столешница из искусственного камня выполнены под заказ.
Отличительной особенностью планировки ванной комнаты стало использование двух душевых леек для совместного принятия душа. В зоне душевой сделали опуск потолка.
Бренды, представленные в проекте
Кухня-гостиная
Отделка: декоративная штукатурка, Loggia; керамогранит, Emil Ceramica; краска, Dulux
Напольное покрытие: керамическая плитка, TopCer; ламинат, Kaindl
Мебель: табурет барный, La Redoute; бежевое кресло, Idealbeds
Освещение: встроенные точечные светильники, Maytoni; бра, Vele Luce
Ванная комната
Отделка: плитка, Equipe; керамогранит, Marazzi; декоративная штукатурка, Loggia
Напольное покрытие: керамогранит, Arania
Освещение: встроенные точечные светильники, Maytoni
Прихожая
Отделка: краска, Dulux
Напольное покрытие: керамогранит, TopCer
Спальня
Отделка: краска, Dulux
Напольное покрытие: ламинат, Kaindl
Мебель: кровать, Jamni; стул, Imodern
Освещение: светильник, Eurosvet
Хотите, чтобы ваш проект был опубликован на INMYROOM? Присылайте фотографии интерьера на wow@inmyroom.ru



























