Сервис

8 (800) 300 61 76
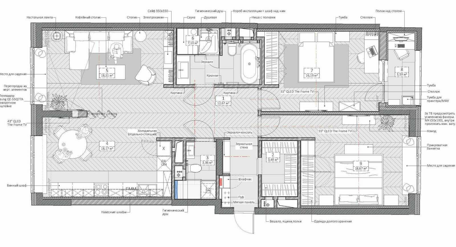
Фотография: Планировки в стиле , Классический, Квартира, Проект недели, Москва, 3 комнаты, Более 90 метров, Алена Чмелева, Art Concept – фото на INMYROOM
Закрыть
Ирина Собыленская
Дизайнер интерьера
4,5
– 22 отзыва
Гамма
Другие фото в этом проекте
Сохранить
Подобрать товары
Закрыть
Информация