
Закрыть
Ирина Собыленская
Дизайнер интерьера
Фото из статьи
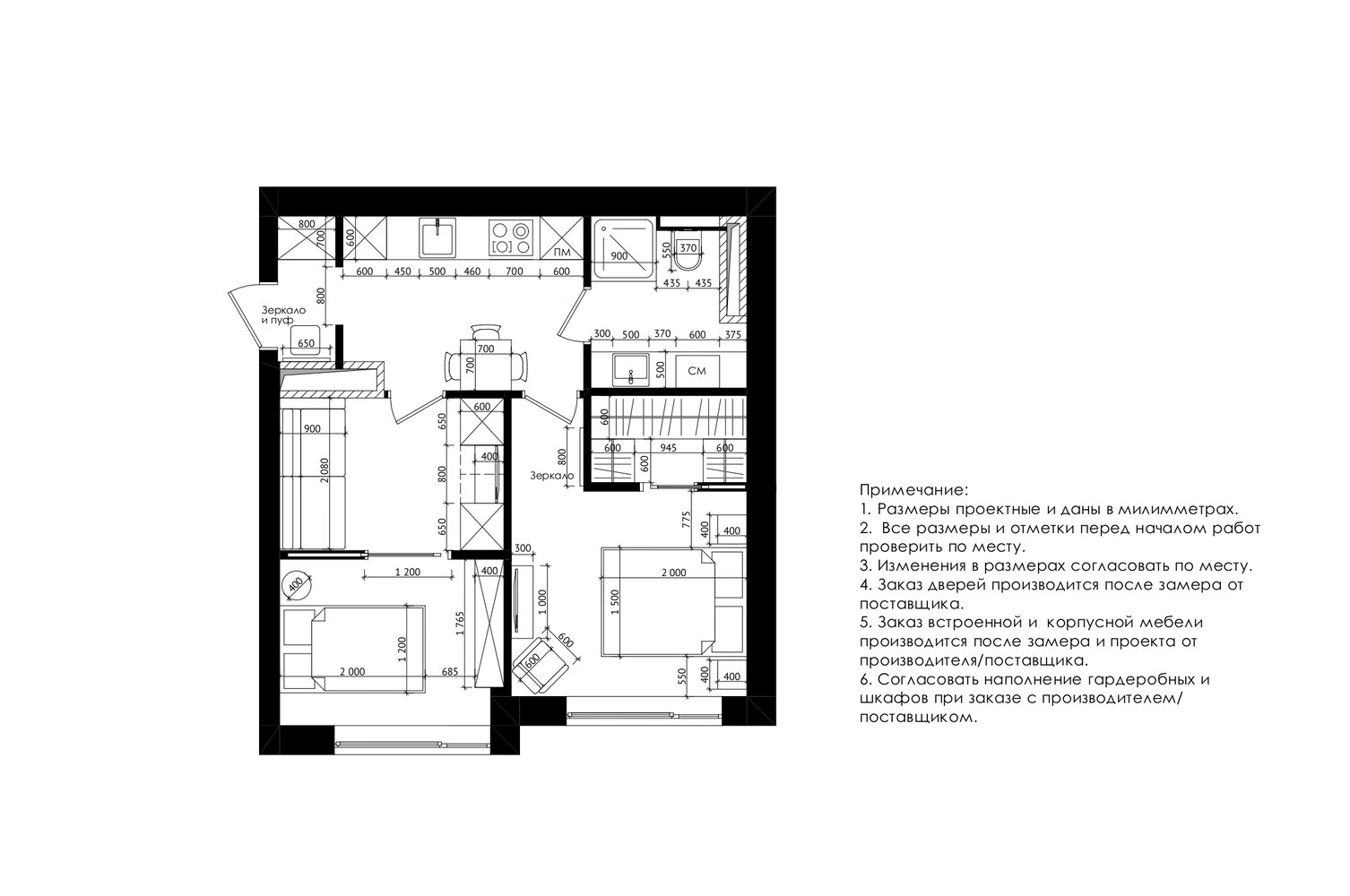
Из однушки в трешку: удобная планировка на 40 м²Дизайн
Марина Саркисян
4,1
– 74 отзыва
Гамма
Другие фото в этом проекте
Сохранить
Подобрать товары
Закрыть
Сервис

Разрешить использование cookies?
Мы используем cookies для удобства и персонализации. Подробности в Политике конфиденциальности. Согласие можно отозвать в любой момент.