Сервис

8 (800) 300 61 76
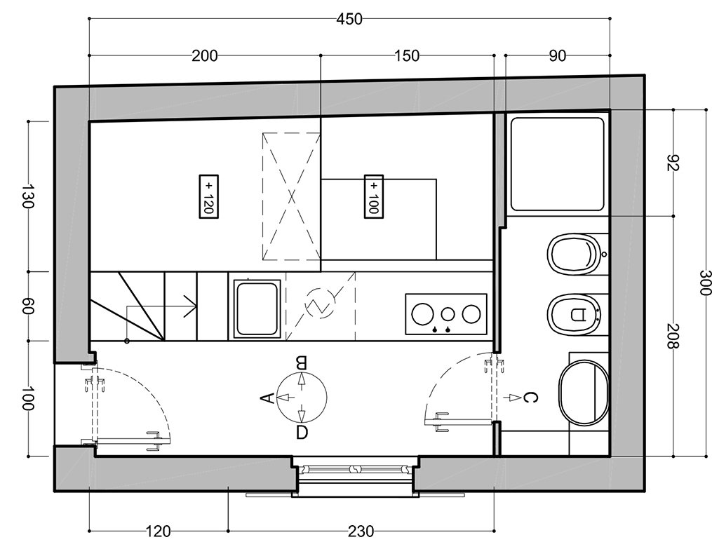
Фотография: Планировки в стиле , Советы, Минимализм, как обустроить однушку, Сильвана Читтерио, кухня в однушке, гардероб в однушке, как организовать систему хранения в однокомнатной квартире, многофункциональный подиум – фото на INMYROOM
Закрыть
Анастасия Валентей
Гамма
Другие фото в этом проекте
Сохранить
Подобрать товары
Закрыть
Информация