
Закрыть
Marina Timokhina
Фото из статьи
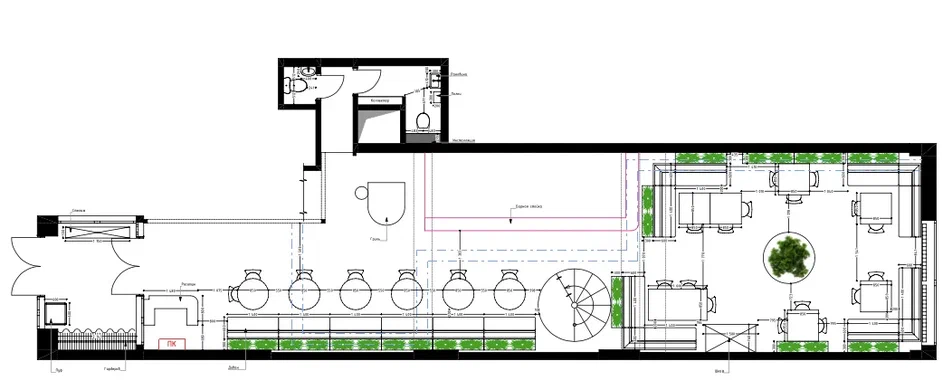
Ласковое тепло солнечной Италии в московском ресторане5,0
– 128 отзывов
Гамма
Сохранить
Закрыть
Сервис

Разрешить использование cookies?
Мы используем cookies для удобства и персонализации. Подробности в Политике конфиденциальности. Согласие можно отозвать в любой момент.