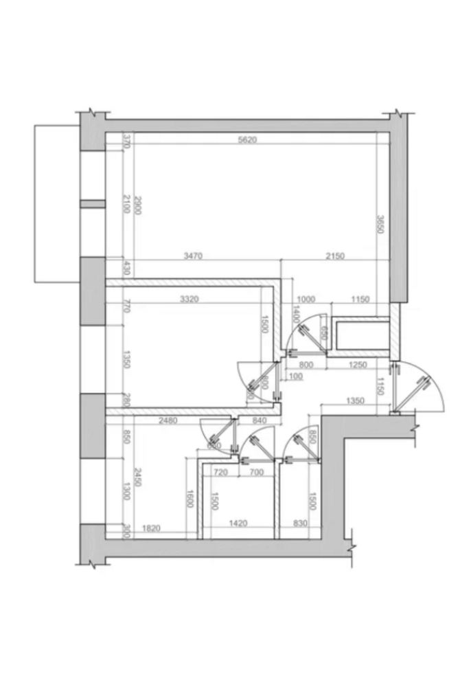
Планировка до ремонта
Закрыть
Элина Гусева
4,1
– 24 отзыва
Гамма
Сохранить
Закрыть
Информация