Сервис

8 (495) 255 78 84
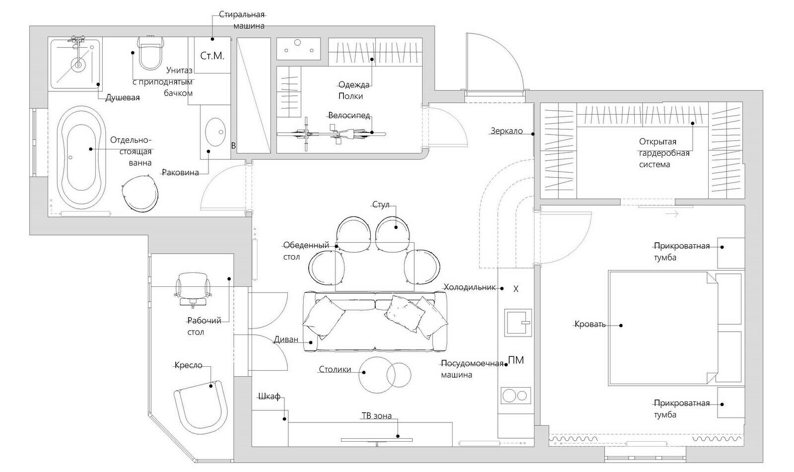
Такую планировку можно согласовать именно потому, что квартира расположена над нежилым этажом.
Закрыть
Marina Timokhina
Дизайн
Anastasia Potapova
4,5
– 71 отзыв
Гамма
Другие фото в этом проекте
Сохранить
Подобрать товары
Закрыть
Информация