Архитектор грамотно распорядился площадью двухуровневой квартиры и создал обстановку, в которой комфортно и взрослым, и детям: на 188 квадратах разместились как просторная кухня-гостиная, изолированная спальня и бильярдная комната, так и две жизнерадостные детские со спортивными уголками, которые понравятся любому ребенку. О процессе создания этого проекта рассказывает его автор – архитектор Никита Морозов.
Общая информация
Место: Подмосковье, коттеджный
поселок Александровский
Этажи: 2
Метраж: 188 квадратных метров
Комнаты: 5
Санузлы: 3
Высота
потолков: 3 метра
Никита Морозов – архитектор. В 2007 году организовал дизайн-бюро KM STUDIO, в котором молодые архитекторы и дизайнеры создают интерьеры в различных стилях – от ар-деко до лофта. В работе ценит возможность постоянно встречать новых интересных людей, вдохновение черпает в книгах и в кино, в классическом изобразительном искусстве и новейших технологиях. Считает, что идеальный интерьер должен объединять эстетику и эргономику и дарить впечатления.
Заказчики и пожелания
Интерьер таунхауса создавался для семьи с двумя маленькими детьми – их сыновьям 1 год и 4 года. Хозяин – топ-менеджер, увлекается бильярдом и настольным теннисом, а его жена домохозяйка. Они любят путешествия, совместные велопрогулки и просмотр кино.
Заказчики
хотели получить светлый и жизнерадостный интерьер. Среди особых пожеланий –
«никакой классики, резьбы и позолоты», разместить в гостевой бильярдный стол, а на кухне – барную стойку. На
первом этаже мы запланировали кухню-гостиную, гостевую и гостевой санузел, на
втором – спальню и детские, отдельно родительский и детский санузлы.
Перепланировка и отделка
Перепланировка
не понадобилась, потому что расположение межкомнатных перегородок полностью устраивало заказчиков.
Отделочные
материалы мы выбрали довольно-таки экономичные: краска, бумажные обои, ламинат. Когда я предложил добавить в интерьер кирпичные поверхности, заказчики с радостью согласились. Коллекции
плитки выбрали пестрые, напоминающие о лоскутной технике шитья, что поддержало
общую жизнерадостную концепцию интерьера. Кроме того, на полу кухонной зоны мы уложили плитку гексагональной формы с текстурой по цветную глину. На стене в бильярдной в качестве оригинального акцента мы поклеили фотообои Mr. Perswall в нейтральной бежевой гамме – с контурами карты мира. На стенах детских – также обои Mr. Perswall.
Потолки в квартире сделаны из гипсокартона, в санузлах – водостойкого. В жилых комнатах мы применили оригинальное решение – сделали «деревянные» балки на потолке из недорогого и легкого пенополиуретана. Мне показалось, что на перекрестке скандинавского и средиземноморского стилей балки будут смотреться естественно. Вторят балкам деревянные рейки в спальне и детской, там они еще и зонируют, намеренно подчеркивают асимметрию мансардных потолков. В спальне родителей мы сделали белую «кирпичную» стену – панели под кирпич для внутренней отделки покрыты белой краской. От настоящей кирпичной кладки отказались, чтобы не терять полезные сантиметры площади. Под цвет деревянных планок на потолке подобрали керамогранит с деревянной фактурой в одной из ванных.
Хранение
В доме мы использовали традиционные системы хранения. На
первом этаже предусмотрели шкаф для верхней одежды в прихожей и отдельную гардеробную,
где можно хранить сезонную одежду. Мы стремились использовать пространство в доме по максимуму, поэтому
даже на лестничной площадке установили большой стеллаж для книг.
Угловая кухня имеет не только обширную
рабочую поверхность за счет своего размера, но и много шкафчиков для запасов и
кухонной утвари. В каждом санузле есть тумба или шкафчик для бытовой химии и прочих необходимых вещей. В детских за хранение отвечают шкафы-купе, встроенные в ниши, в которых прячутся игрушки и вещи, во вместительных комодах хранится постельное белье. В мастер-спальне родителей мы оборудовали
полноценную гардеробную.
Свет
Заказчики
попросили осветить помещения преимущественно точечными светильниками. Люстр немного,
и все они в современном стиле. В детской объемное панно подсвечивается специальными
направленными спотами, а второй ярус освещения заполняют бра. Из соображений безопасности небольшая лестница без окна имеет подсветку ступенек.
В бильярдной мы установили напольный прожектор MW-Light, чтобы можно было подсветить зону дивана во время чтения. Вместо обычных бильярдных светильников на штанге стол освещают люстры SLV, золотистые изнутри. В спальне за основной свет отвечает люстра Mantra, а направленное освещение создается за счет настольных светильников у кровати и бра. На кухне подвесы Lighstar выделяют зоны обеденного стола и барной стойки.
Цвет
Цветовое решение обусловлено выбранной комбинацией стилей и пожеланиями заказчика. Палитра объекта складывается из ярких естественных цветов: бильярдная – в строгих землистых оттенках, гостиная, спальня родителей, одна детская и санузлы – в средиземноморской бело-голубой гамме, вторая детская и лестница – солнечные, с вкраплениями зелени. Кроме того, в детской мы сделали яркий желтый потолок – этот цвет выразительный, оптимистичный и стимулирующий.
Мебель
Корпусная
мебель в доме – в основном ИКЕА,
легкая и современная, а диваны Minotti выбрали из соображений комфорта.
Обеденную группу мы планируем выбрать из того, что есть в наличии в московских магазинах с демократичными ценами, столики в бильярдной – под заказ. Что касается кухонного гарнитура, то мы остановились на кухне Verona, потому что этот бренд известен своим качеством и модель нравится заказчикам.
Декор и текстиль
Стены комнат украшают семейные фотографии, современные постеры и снимки с пейзажами из путешествий. В одной детской стена выкрашена грифельной краской, чтобы можно было рисовать мелом, а на второй мы сделали яркое панно из LEGO. Ткани мы выбрали натуральные – хлопок и лен, с рисунком плетения нитей или геометрическими узорами.
Стиль
При проектировании мы вдохновлялись скандинавским стилем, эко и средиземноморским, поэтому в интерьере много белых стен, голубых и зеленых оттенков, фактуры дерева и керамических изразцов.
Сложности и сроки
Как это всегда бывает в проектах с мансардным этажом, нужно было выигрышно оформить потолки, в нашем
случае – в детских комнатах. И благоразумно распорядиться не очень большими площадями
бильярдной, гостевого санузла и детской.
Проект мы создали всего за полтора месяца благодаря слаженной работе с
клиентами и их отзывчивости. По нашим планам, реализация займет около 8
месяцев.
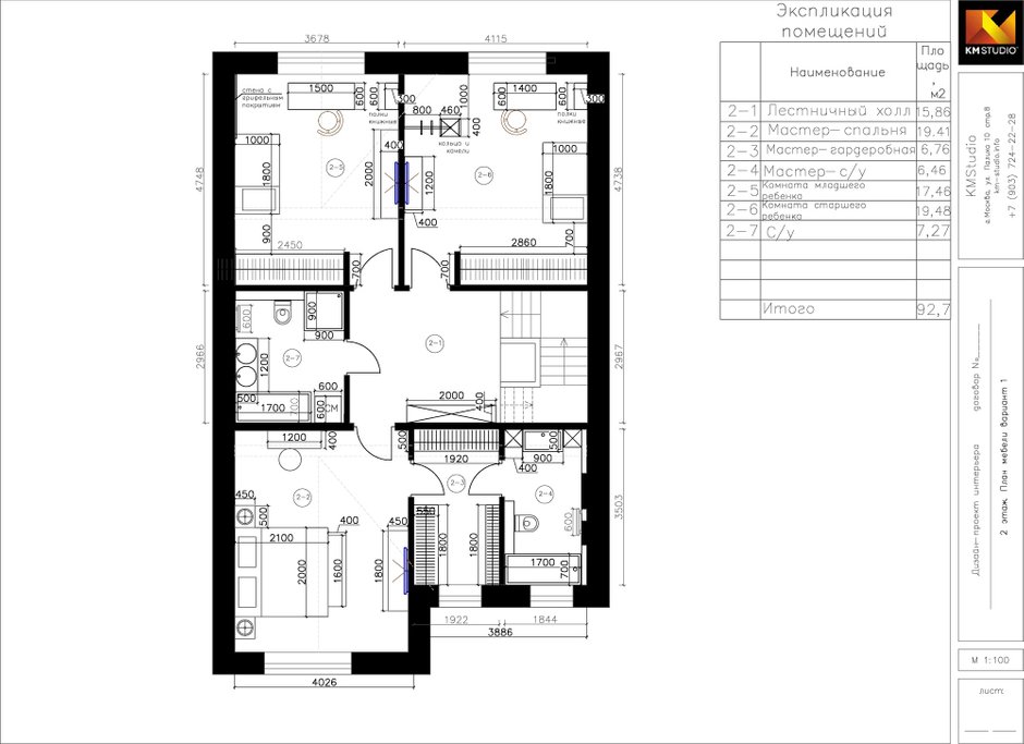
Метраж по помещениям
Кухня-гостиная: 40,26 кв. м
Бильярдная-гостевая: 22,07 кв. м
Мастер-спальня: 19,41 кв. м
Первая детская: 17,46 кв. м
Вторая детская: 19,48 кв. м
Гардеробная: 5,57 кв. м
Мастер-гардеробная: 6,76 кв. м
Первый санузел: 4,13 кв. м,
Второй санузел: 6,46 кв. м
Третий санузел: 7,27 кв. м
Планировка
Советы читателям InMyRoom: как создать интерьер в подобном стиле
1. Для санузлов в таком стиле, если они имеют небольшую площадь, хорошо использовать некрупную плитку оригинальных форматов в сочетании с покраской стен
2. Балки – уместный декор.
Необязательно их делать из дерева: пенополиуретановые имеют удобную полость
внутри для провода кабелей и легче в монтаже.
3. Выбирая цветовую гамму, учтите:
в пестром интерьере должна быть объединяющая палитра оттенков одинаковой насыщенности и база белого цвета.
Бренды, представленные в проекте
Диваны,
Minotti
Мебель, ИКЕА
Кухня,
Verona
Детская,
LEGO
Освещение,
Lightstar, SLV, Centrsvet, MW-Light
Обои,
Aura, Mr. Perswall
Краска
для
стен,
Dulux
Плитка
керамическая,
Verso25, Peronda, Refin
























































