Вкратце
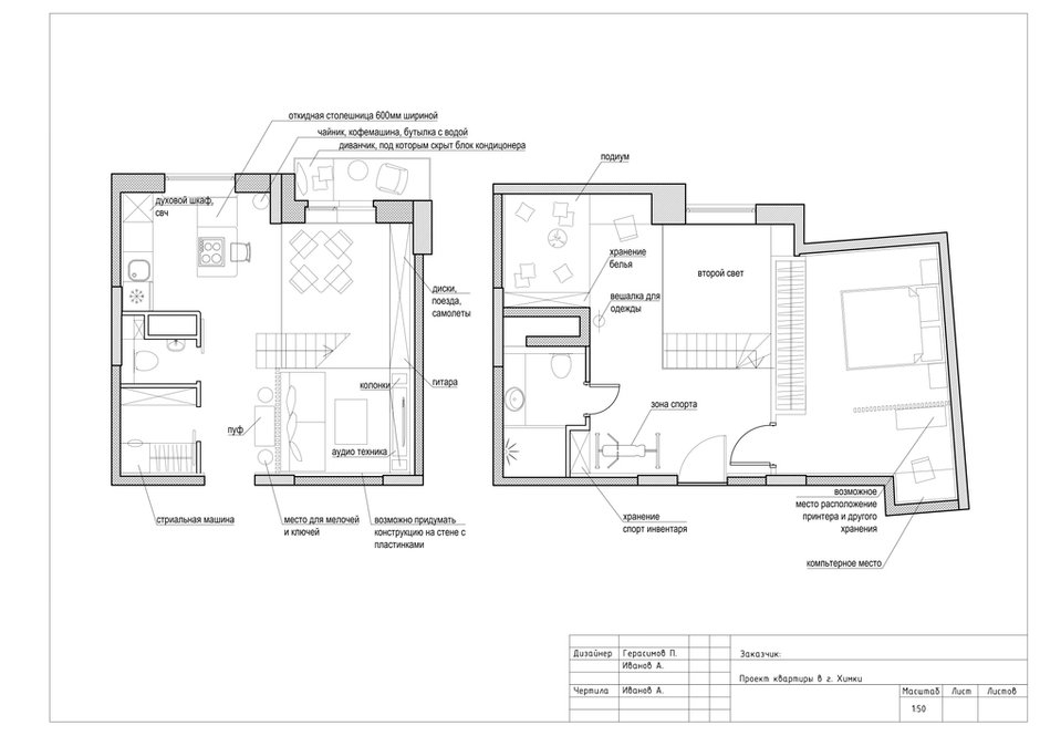
Организацию комфорта в этой мансардной двушке дизайнеры мастерской Geometrium начали с зонирования. Профи объединили небольшую кухню с гостиной и столовой на первом этаже – стены были из пеноблоков и сложностей не возникло. Спальню, будущую детскую и зону для занятия спортом «подняли» на второй этаж. Геометрия комнат в мансарде практически не менялась – немного переместили перегородку в спальне, чтобы уместился шкаф.
Заказчикам проекта была по душе светлая палитра в традициях скандинавского стиля. «Большинство стен квартиры покрыты белой краской. Чтобы отделка стен не выглядела банальной, мы предложили креативные решения: например, на кухне появились грифельная доска на фартуке и отдельная стена для ярких магнитиков, – комментируют дизайнеры. – Для отделки пола выбрали светлую паркетную доску и крупноформатную плитку – практично и в духе скандинавских интерьеров».
Для удобного хранения при входе за раздвижной дверью есть гардеробная с постирочной и кладовой. А на втором этаже в спальне авторы проекта разработали вместительный шкаф точно под геометрию мансардной комнаты. В квартире много мебели из ИКЕА – бюджет проекта был ограничен. Есть предметы и российских фабрик – хороший вариант «цена-качество». Остаться в рамках бюджета помогло использование ДСП – экологично и недорого.
Этот простой скандинавский интерьер мы разбавили желтыми и красными акцентами: несколько стульев в столовой, подушки, цветные постеры – жизнерадостная нотка никогда не помешает. Музыкальные пластинки из коллекции хозяев квартиры тоже не пылятся на полках – это уникальный настенный декор» – отмечают профи. Смело можно сказать – интерьер с яркой индивидуальностью.
Планировка
Бренды, представленные в проекте
Холл
Отделка стен: краска, Tikkurila; стеклохолст
Напольное покрытие:
Kerama Marazzi
Мебель:
на заказ мастерская «Твой Цех»
Освещение: Donolux
Гостиная
Отделка стен: краска, Tikkurila; стеклохолст
Напольное покрытие:
инженерная доска, Coswic
Мебель:
Raroom; selecta; «8 марта»; Tanagra, «Твой Цех»
Ковер: ИКЕА
Текстиль: Newdesign.ru
Техника: Pult.ru
Освещение: Donolux; Cosmorelax
Спальня
Отделка стен: краска, Tikkurila; стеклохолст
Напольное покрытие:
инженерная доска, Coswic
Мебель: Hoff; Belkawood.ru; ИКЕА
Детская
Отделка стен: краска, Tikkurila; стеклохолст
Напольное покрытие:
инженерная доска, Coswic
Мебель: ИКЕА
Текстиль: Newdesign.ru
Освещение: Donolux
Кухня
Отделка стен: краска, Tikkurila; стеклохолст
Напольное покрытие: Imola Ceramica
Мебель: ИКЕА; Archpole
Гарнитур, бытовая техника, смесители: Pustelli
Ванная комната
Отделка стен: Tikkurila; Monopole
Ceramica
Напольное покрытие:
Kerama Marazzi
Мебель: «Твой цех»
Душевая кабина и санфаянс:
Unit-glass
Duravit, Vitra Dynamic
Смесители: Hansgrohe
Освещение: Donolux
Хотите, чтобы ваш проект был опубликован на InMyRoom? Присылайте фотографии / 3D-визуализации на wow@inmyroom.ru.


















