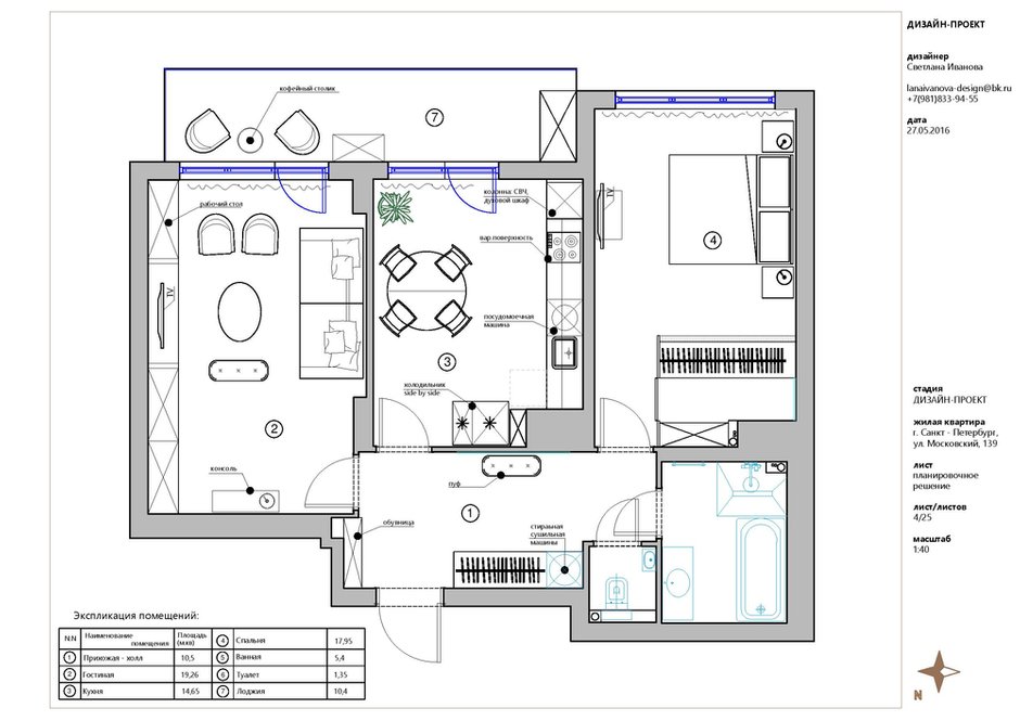
Заказчики хотели превратить стандартную двушку в удобное и комфортное жилье – но обязательно без перепланировки. В результате дизайнер Светлана Иванова оформила на 74 квадратных метрах уютную спальню, вместительную кухню, светлую гостиную, два санузла и прихожую: не обошли стороной и лоджию – здесь небольшая зона отдыха.
Большое внимание Светлана уделила проектированию систем хранения. В спальне сделали мини-гардеробную для личных вещей, чтобы ничего не отвлекало от отдыха. В гостиной дизайнер оборудовала вместительную систему хранения до потолка: со шкафом, нишей под телевизор и даже полноценным рабочим местом. Кстати, на кухне тоже остановились на высоких шкафах – так свободное пространство используется более рационально. А вот прихожую не стали загромождать большим количеством мебели и ограничились одним шкафом для верхней одежды.
«Со стилем – американской классикой – мы с заказчиками определились сразу: он смотрится одинаково уместно и в коттедже, и в небольшой городской квартире, – рассказывает Светлана. – Поэтому и отделку выбрали соответствующую: качественную и подчеркивающую достаток – паркетную доску и плитку на пол, английскую краску для стен, обои только в качестве акцентов».
Одна из характерных черт американского стиля – отчетливо выраженная симметрия. В этом интерьере она прослеживается в каждой комнате: в гостиной соседствуют пара кресел и пуфов по обеим сторонам от столика, для спальни Светлана выбрала одинаковые прикроватные тумбы и лампы. Даже в санузле большую ванну уравновесили с помощью прямоугольной столешницы под раковину. Получился гармоничный интерьер, в котором каждый предмет обстановки на своем месте.
Планировка
Бренды, представленные в проекте
Коридор
Отделка: краска, Little Greene
Декор: Zara Home
Освещение: Eichholtz
Гостиная
Отделка: краска, Little Greene; обои, YanaSvetlova
Мебель: Crate & Barrel
Ковер: Crate & Barrel
Текстиль: Crate & Barrel
Декор: Crate & Barrel
Освещение: люстра, Gramercy Home
Спальня
Отделка: краска, Little Greene
Мебель: Crate & Barrel
Текстиль: Crate & Barrel
Декор: Crate & Barrel, Zara Home
Освещение: люстра, Eurofase
Кухня
Отделка: краска, Little Greenе
Мебель: Eichholtz
Бытовая техника: Neff
Смесители: Smeg
Освещение: Eichholtz
Ванная комната
Отделка: краска, Little Greene
Мебель: Porcelanosa Grupo
Cанфаянс: Porcelanosa Grupo
Освещение: Zara Home
Хотите, чтобы ваш проект был опубликован на InMyRoom? Присылайте фотографии / 3D-визуализации на wow@inmyroom.ru.
Создайте комфортный интерьер с этими товарами:












































