Заказчики точно знали, чего хотят. Не просто яркий, позитивный интерьер и много-много места для хранения. А четкий список пожеланий по каждому помещению. На кухне – полноценный стол на 4–5 человек, побольше ящичков, встроенная техника, но без стиральной машинки, потому что машинку желательно поставить в ванной. Ванная – тоже с ящичками и большая, но не за счет объединения с туалетом.
Жене нужна была гардеробная, а мужу – полноценное рабочее место. И насчет детской (в семье два мальчика) все было понятно: две большие кровати (ни в коем случае не одна двухъярусная), большой шкаф и два стола.
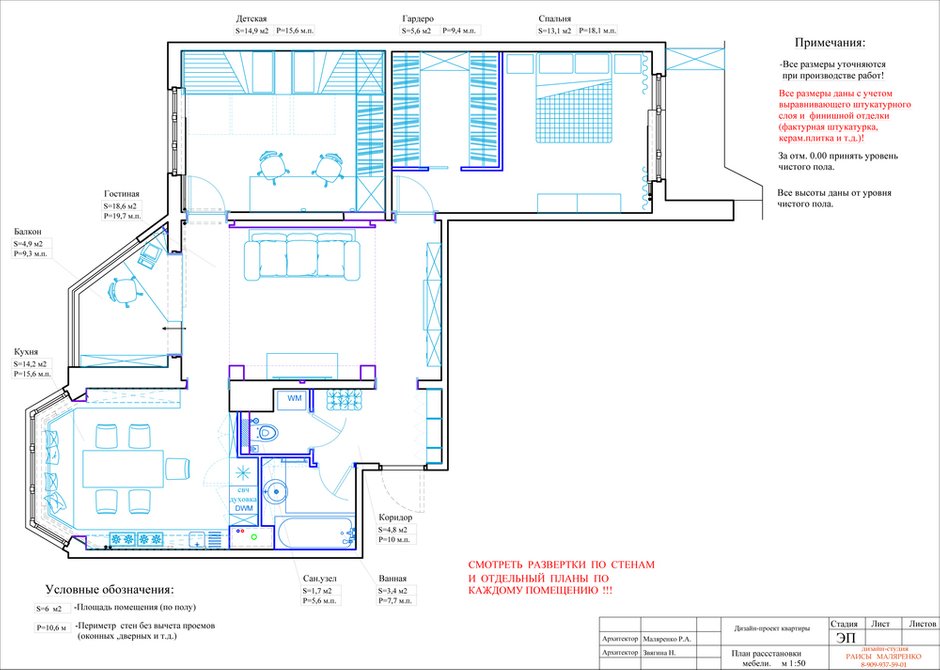
Квартира подверглась глобальной перепланировке. В существующем плане предусмотрены два входа на кухню – через коридор или гостиную. За счет второго удалось немного увеличить ванную, разместить в санузле стиральную машинку, а на кухне – шкаф со встроенной техникой. В детской пришлось перенести дверной проем, иначе все пожелания заказчиков выполнить было невозможно. Но поскольку квартира находится на последнем этаже, перепланировку удалось согласовать.
Цветовое решение дизайнеру тоже удалось, хотя найти согласование и здесь было непросто. Мужу нравится сочетание темно-коричневого с красным, оранжевым или ярко-зеленым, а жене – синие, голубые, бирюзовые, бежевые тона. Спальню нужно было сделать в цветах жены, а в гостиной – угодить мужу. Дети были согласны на зеленый.
Основная идея интерьера: гостиная – центр квартиры, сюда ведут выходы из всех комнат. Цветовое решение каждой комнаты разное, но яркое и насыщенное, а гостиная – нейтральная, спокойная, симметричная. Эта идея позволила соединить все пожелания заказчиков. Еще один объединяющий элемент – цвет пола. Натуральный дуб прекрасно сочетается с синим, зеленым и красно-коричневым.
Планировка
Бренды, представленные в проекте
Холл
Отделка стен: Tikkurila
Освещение: люстра Favourite
Ванная и санузел
Отделка стен: керамическая плитка фабрика Cisa, декоративные вставки Kerama Marazzi
Напольное покрытие: керамогранит Avorio Imperiali
Cантехника: Belbango
Смесители: Hansgrohe
Освещение: встроенные светильники Lightstar
Гостиная
Мебель: диван Albert&Shtein, журнальные столики Giorgetti
Освещение: встроенные светильники Favourite, накладные светильники Novotech, настольная лампа Zara home
Кухня
Мебель: стол и стулья ИКЕА
Техника: Bosch
Освещение: встроенные светильники Favourite, люстра ArteLamp
Хотите, чтобы ваш проект был опубликован на InMyRoom? Присылайте фотографии / 3D-визуализации на wow@inmyroom.ru
Создайте подобный интерьер с этими товарами:






































