Чтобы не загружать небольшое пространство однушки вещами и хозяйственными принадлежностями, лучше их спрятать во вместительные шкафы и встроенные системы хранения. Архитектор Анастасия Киселева предложила 3 варианта планировки на примере однушки в доме серии 1–150, а эксперт Максим Джураев прокомментировал нюансы согласования.
Краткая информация
Типовая серия I–510 (1–510) присутствует в подавляющем большинстве районов Москвы, застроенных в 50–60-е годы, по распространенности среди пятиэтажных хрущевок входит в тройку лидеров наряду с 1–515/5 и 1–511/5.
Основной недостаток типовой планировки – маленький коридор при входе с тремя дверями, в котором невозможно разместить шкаф или гардеробную.
Вариант 1: со шкафами-купе
Полностью поменяли конфигурацию ванной комнаты: с одной стороны, увеличили ее за счет коридора, с другой – сделали нишу для шкафа-купе в прихожей. При этом в ванной комнате осталось достаточно места для сантехники и хозяйственного шкафа со стиральной машинкой.
За счет переноса входа на кухню, поставили вместительный угловой гарнитур: для увеличения объема хранения можно сделать верхние шкафы до потолка. В жилой комнате все вещи и одежду спрятали в шкаф-купе. Балкон в домах серии 1–150 утеплить невозможно: использовали его для хранения вещей, не боящихся температурных перепадов.
Мнение эксперта: получилась достаточно удобная планировка, согласовать ее не составит проблем. Понадобится проект перепланировки и техническое заключение от любой проектной организации, имеющей соответствующий допуск СРО.
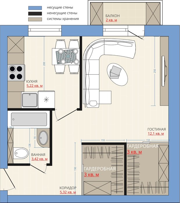
Вариант 2: с двумя гардеробными
Внутренние стены квартиры не являются несущими: можно перенести их так, чтобы оборудовать две небольшие гардеробные. Одна – со стороны коридора для хранения верхней одежды, вторая – со входом из жилой зоны для одежды и личных вещей. Также в гостиной для хранения задействовали тумбу под ТВ.
В кухне, чтобы увеличить полезный объем гарнитура, сделали верхние ящики до потолка. Над холодильником также можно разместить дополнительные модули. В ванной комнате стиральную машинку пришлось поместить под раковину. Для хранения остался небольшой стеллаж и полки над инсталляцией.
Мнение эксперта: мест для хранения более чем достаточно для небольшой семьи. Для согласования понадобится проект перепланировки и техническое заключение.
Вариант 3: с двусторонним шкафом
Чтобы обустроить в комнате полноценное спальное место, передвинули перегородку. Таким образом, с двух сторон можно симметрично разместить два шкафа-купе: для верхней одежды и личных вещей. В основание кровати можно установить дополнительные модули для хранения – это удобно.
Тумба под ТВ отлично подойдет для размещения книг, документов, хозяйственных принадлежностей. В случае необходимости над телевизором можно повесить несколько полок. Так как ванная очень маленькая, стиральную машину пришлось перенести на кухню. А гарнитур поставить вдоль стены с окном.
Мнение эксперта: несмотря на перенос труб в кухне, согласовать такой вариант просто. Нужен проект перепланировки и техническое заключение от любой проектной организации, имеющей соответствующий допуск СРО.




