«Когда нам предложили разработать дизайн для апартаментов в центре Парижа, было сложно не поддаться соблазну сделать интерьер в «очень парижском стиле», – рассказывает Ника Воротынцева. Киевское дизайн-бюро пригласили поработать во Франции постоянные заказчики – они часто бывают в Париже и купили там квартиру для отдыха и встреч с друзьями.
«В концепции интерьера мы отталкивались от размещения объекта, он находится в центре Парижа в историческом здании. Мы также проанализировали парижские интерьеры – в основном это была эклектика с легким налетом гламура и небрежности. Поэтому мы делали все, чтобы у нас на выходе получился очень парижский интерьер», – продолжает Ника.
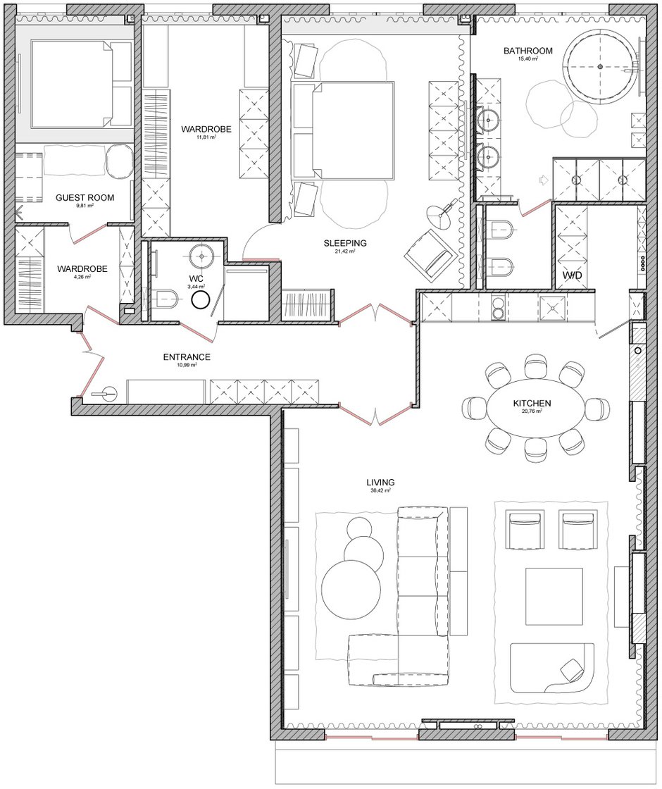
Прежде всего дизайнеры радикально перепланировали пространство. Вместо маленьких комнаток и кладовых, из которых состоят старые парижские квартиры, появились зона у камина, зона ТВ, столовая с кухней, хозяйский блок с ванной комнатой и гардеробной, гостевая комната с санузлом.
Поскольку квартира предназначена не для постоянного пребывания, а для отдыха, дизайнеры смогли поиграть с пространством. Вводные данные для игры – вкусы заказчицы, которая имеет артистичную натуру, любит яркую цветовую гамму и зеркала.
Больше всего насыщенного цвета и зеркал в телевизионной зоне. В столовой цвет заявляет о себе лишь в обивке стульев. А игра отражений продолжается в темно-графитовом коридоре, который заканчивается зеркалом и поэтому кажется бесконечным.
Работая над созданием интерьера в Париже, невозможно не заглянуть на блошиные рынки – каминный портал и зеркала позапрошлого века в этой квартире как раз оттуда. Чтобы еще больше подчеркнуть «французскую богемность», дизайнеры использовали текстиль Pierre Frey – гардины в ванной комнате декорированы тканью из последней коллекции этой старой французской марки.
Но в целом предметный ряд здесь интернациональный. Наряду с современными итальянскими фабриками Pianca, Novomobili, Creazioni Amanda бюро Ники Воротынцевой активно задействовало украинских производителей. Стеллажная система в зоне TV, изголовье кровати, мебель для ванной комнаты изготовлены украинской компанией PlanB.
В ответ на поздравления с прекрасно выполненной работой Ника говорит, что испытывает смешанные чувства. Что это значит? «Смешанные чувства – это когда ты уверен, что сделал очень парижский интерьер, а потом довольные клиенты и их гости, местный фотограф и версальские дизайнеры из соседних квартир, приходящие позаимствовать идеи, восхищаются «таким необычным для Парижа интерьером».
Планировка
Создайте интерьер с товарами из магазина InMyRoom:







































