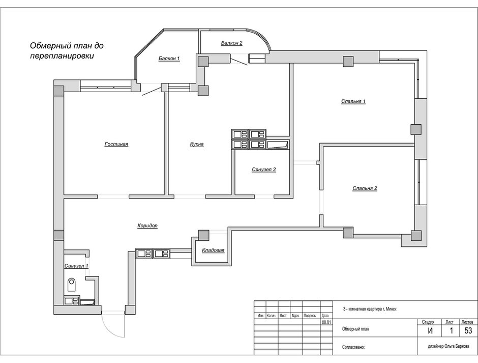
К Ольге Берковой обратилась семья с 4 детьми: заказчики хотели не только создать удобный и комфортный интерьер, но и превратить трешку в четырехкомнатную квартиру – чтобы места точно хватило всем. Нужна была просторная гостиная, спальня для родителей и две детские – для дочки и сыновей. Еще одним пожеланием стала прихожая – на первоначальном плане она просто отсутствовала.
В итоге дизайнер практически полностью «перекроила» изначальную планировку: демонтировали перегородку между кухней и гостиной, часть кухни у окна выделили под родительскую спальню. Прихожую и коридор расширили за счет переноса одного из санузлов. Минимальные изменения коснулись только детских комнат: Ольга просто изменила конфигурацию помещений, чтобы вместить больше функциональных зон.
«Семья у заказчиков большая, поэтому много внимания мы уделили проектированию систем хранения, – говорит автор проекта. – Первой проблемой было отсутствие прихожей и возможности разместить шкаф для верхней одежды и обуви: в результате мне удалось установить вместительный шкаф двойной глубины. В маленькой спальне для хранения задействовали нишу (для одежды), шкаф, стеллаж, тумбы».
В детских разместили довольно большие шкафы. В постирочной – зона для хранения хозяйственного инвентаря и бытовой химии. Кроме этого, в квартире получилось выделить место для отдельной гардеробной и кладовой. И, конечно, дизайнер не могла обойти стороной балконы – места для хранения есть и там.
В отделке Ольга сделала ставку на натуральные материалы: все-таки в квартире много детей. На пол постелили паркетную доску и плитку, на стенах преимущественно моющаяся краска и обои с неброским принтом. Интересное решение дизайнер нашла, чтобы замаскировать раздвижные деревянные двери в кладовку: в них в определенном порядке вставили зеркальные полосы – они создают ощущение, что за ними есть еще большое пространство.
«Между собой мы назвали этот проект «Утренний бриз» – из-за цветовой палитры. За основу я взяла нежную песочно-бежевую гамму с бирюзово-синими акцентами. Эти оттенки перетекают из гостиной во все остальные комнаты: например, в спальне добавили немного сиреневого, в санузле появились жизнерадостные желтые детали, в детской для девочки доминирующими стали розовые и коралловые оттенки», – рассказывает Ольга.
Так как основной упор был сделан на планировку и отделку, мебель выбирали, исходя из оставшегося бюджета. В результате демократичные марки типа ИКЕА соседствуют с дизайнерскими предметами декора – вместе они создают интересный интерьер с характером, который наполнен домашней атмосферой и уютом.
Планировка
Бренды, представленные в проекте
Холл
Отделка: плитка, Grespania
Напольное покрытие: паркетная доска, Boen
Освещение: Centrsvet
Гостиная
Отделка: краска, Farrow & Ball
Напольное покрытие: паркетная доска, Boen
Мебель: ИКЕА, Signal
Ковер: Jerome Botanic
Текстиль: Zara Нome
Освещение: Centrsvet, Moooi
Спальня
Отделка: краска, Caparol
Напольное покрытие: паркетная доска, Boen
Мебель: ИКЕА
Текстиль: Zara Нome, ИКЕА
Освещение: Centrsvet, Globo
Детская для девочки
Напольное покрытие: паркетная доска, Boen
Мебель: ИКЕА, Signal
Ковер: Jerome Botanic
Текстиль: Zara Нome, ИКЕА
Декор: Signal
Освещение: Centrsvet, Nowodvorski, ИКЕА
Детская для мальчиков
Отделка: обои, вагонка, OSB-ЭКО плита, магнитно-грифельная краска, декоративный камень
Напольное покрытие: паркетная доска, Boen
Мебель: ИКЕА
Ковер: ИКЕА
Текстиль: Zara Нome, ИКЕА
Освещение: Centrsvet, ИКЕА
Кухня
Отделка: плитка, Vives
Напольное покрытие: плитка, Vives
Смесители: Teka
Освещение: Centrsvet
Ванная комната
Отделка: плитка, Vives
Напольное покрытие: плитка, Vives
Кабина/ ванная/ санфаянс: Villeroy & Boch, Radaway
Смесители: Hansgrohe
Освещение: Centrsvet, ИКЕА
Хотите, чтобы ваш проект был опубликован на INMYROOM? Присылайте фотографии интерьера на wow@inmyroom.ru
Создайте интерьер с товарами из магазина InMyRoom:









































































