Заказчица – молодая женщина, которая любит принимать гостей. Дизайнеры бюро BEinDESIGN спроектировали пространство в соответствии с тем образом жизни, который ей хотелось бы вести: большая кухня предполагает вкусные ужины в домашней обстановке, пианино в столовой – музыкальные вечера.
Удобные диваны в гостиной зоне располагают к приятным беседам за чашкой кофе или бокалом кьянти, гостевая спальня позволяет догадаться, что в доме бывают гости, приезжающие издалека.
Молодая хозяйка видела свою новую квартиру не только красивой, но и удобной. По просьбе заказчицы дизайнеры спроектировали разнообразные места хранения одежды, бытовой техники и хозяйственных мелочей.
При входе изначально было окно, которое превратилось в шкаф. Продуманная конвекция воздуха позволяет хранить вещи, не боясь за их сохранность. В спальне предусмотрена гардеробная комната, в гостевой – еще один шкаф. В постирочной есть место для хранения пылесоса и гладильной доски.
Цветовая палитра спокойная, пастельная, способствует максимальному расслаблению. Основной тон – сливочный. В хозяйской спальне к нему добавлен оливковый, в гостиной – нежный бирюзовый в сочетании с бежевым. В гостевой комнате сливочному аккомпанирует карамельно-кремовый.
Большую часть предметов, наполняющих интерьер, дизайнеры предполагают выполнить на заказ, в том числе и картины – они будут написаны специально для этой квартиры. Интерьер придуман так, что хозяйке будет легко его обновить. Он сам словно рама для картины: стоит поменять мягкую мебель, текстиль – и картинка станет другой.
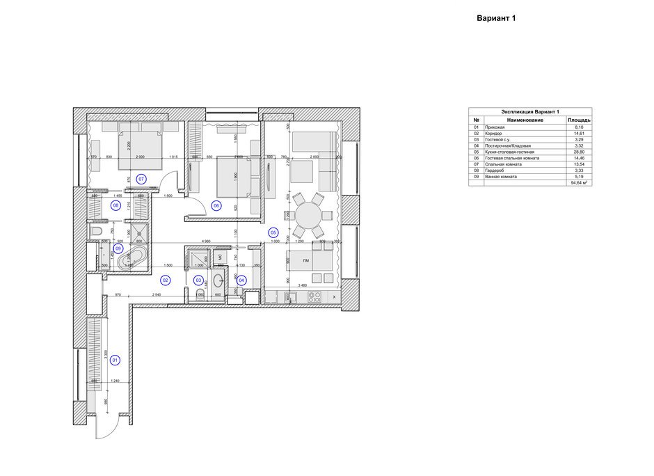
Планировка
Хотите, чтобы ваш проект был опубликован на INMYROOM? Присылайте фотографии интерьера на wow@inmyroom.ru

















