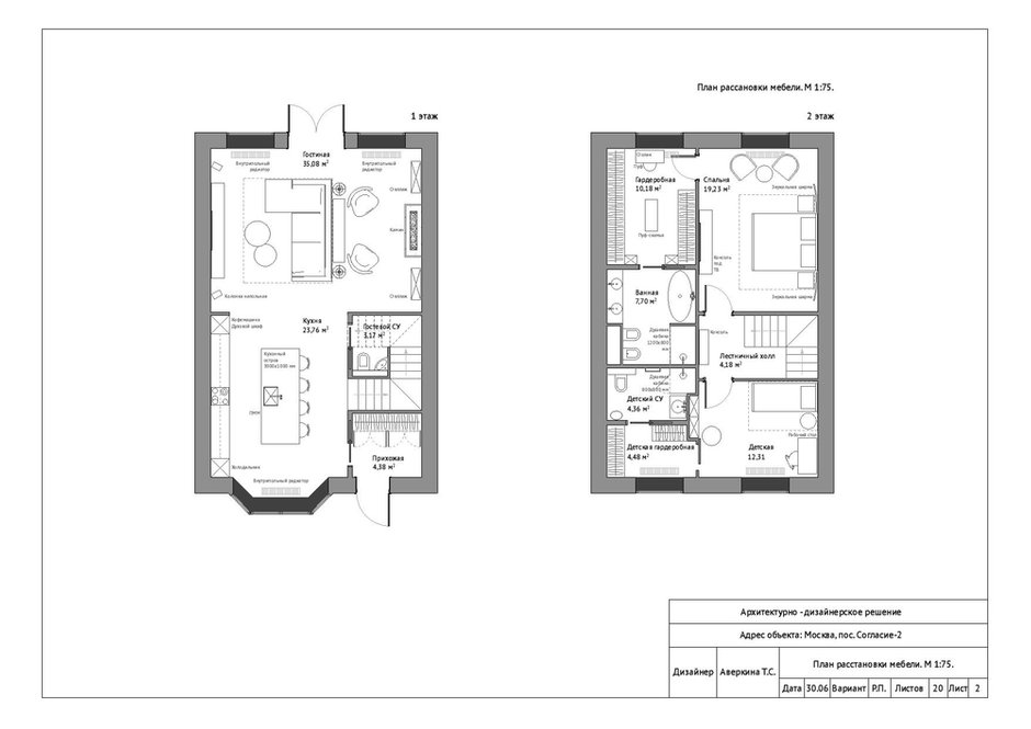
Заказчики – молодая семья с ребенком – решили переехать за город: выбор пал на просторный таунхаус в Новой Москве. Чтобы превратить бетонную коробку в уютный и функциональный дом для семьи и приема гостей, ребята пригласили дизайнера Татьяну Аверкину.
«Заказчики очень любят принимать гостей: в частности родителей, которые живут по соседству, а также своих многочисленных друзей. Под эти цели мы отвели весь первый этаж, – рассказывает дизайнер. – Гостиную разделили на 2 зоны: диванную с телевизором и зону отдыха у камина с эффектом живого пламени. Кухню оборудовали большим островом с барной стойкой, за которой можно разместиться гостям, пока хозяйка готовит еду на большую компанию».
А вот второй этаж – только для семьи: здесь находятся хозяйская и детская спальни, ванные комнаты и гардеробные. Планировка продумана таким образом, чтобы взрослые и ребенок не мешали друг другу.
Большим плюсом таунхауса стало наличие подвала, в котором расположились все технические помещения: от котельной и бойлерной до кладовки и постирочной.
В отделке использовали преимущественно натуральные природные материалы: стены покрасили, дубовую паркетную доску постелили на пол, в отделке кухни сделали ставку на шпон ореха, а для столешниц выбрали карарский мрамор. Окна и подоконники во всем доме сделали из натурального тонированного дуба.
Автор проекта предусмотрела большое количество систем хранения: два больших стеллажа по бокам от камина, многочисленные полки и ящики на кухне, в том числе и в кухонном острове – хватит для всего.
Интерьер первого этажа решен в нейтральных тонах с яркими акцентами. Это одно из пожеланий заказчиков: им важно иметь возможность трансформировать интерьер по настроению, просто заменив текстиль или декор. В хозяйской спальне также преобладают пастельные оттенки. В комнате сына акцентный цвет синий – его любимый.
«Для того чтобы интерьер был живым и глубоким, я предусмотрела несколько сценариев освещения. За основной свет как на первом, так и на втором этаже отвечают потолочные светильники. Акцентные светильники над кухонным островом делают особенно уютными посиделки за барной стойкой. А торшеры и бра в спальне делают обстановку более романтичной», – рассказывает Татьяна Аверкина.
Выбор мебели был продиктован стилем жизни хозяев. Большой мягкий диван в гостиной просто создан для долгих семейных посиделок. Для каминной зоны дизайнер подобрала два уютных кресла с высокой спинкой, в которых можно расслабиться, наблюдая за пламенем.
Современная мебель соседствует в интерьере с винтажными предметами и декором. Тумба под ТВ в стиле 50-х и лаконичный кухонный гарнитур, старинные зеркальные ширмы и дизайнерские кресла в спальне – вместе они делают интерьер интереснее и придают индивидуальность.
Планировка
Бренды, представленные в проекте
Гостиная
Отделка: краска, Little Greene, оттенок Shallows
Напольное покрытие: паркетная доска, Coswick, французская елочка
Мебель: диван, Flexform; тумба под ТВ, Ceccotti; консоль, Gramercy Home
Ковер: Cosmo
Текстиль: Togas
Техника: колонки, Bowers & Wilkins; телевизор, Sony
Освещение: потолочные светильники, Donolux
Спальня
Отделка: краска, Little Greene, оттенок Shallows
Напольное покрытие: паркетная доска, Coswick, французская елочка
Мебель: прикроватные тумбы, ИКЕА
Ковер: Cosmo
Текстиль: Togas
Техника: телевизор, Sony
Освещение: потолочные светильники, Donolux; торшер, Oluce
Детская
Отделка: краска, Little Greene, оттенок Shallows
Напольное покрытие: паркетная доска, Coswick, французская елочка
Мебель: стол, Eichholtz; кровать, Piermaria; стул
Ковер: The Rug Company
Текстиль: Togas
Декор: карта, Restoration Hardware; картины над столом, Eichholtz
Освещение: потолочные светильники, Donolux
Кухня
Отделка: краска, Little Greene, оттенок Shallows
Напольное покрытие: паркетная доска, Coswick, французская елочка
Мебель: барные стулья, Cosmorelax
Гарнитур: фабрика «Атлас Люкс»
Бытовая техника: Bosch
Смесители: Kohler
Освещение: потолочные светильники, Donolux; лампы над островом, ClassiCon
Ванная комната
Отделка: Mosaic Del Sur; краска, Little Greene, оттенок Joanna
Напольное покрытие: Porcelanosa
Санфаянс: душевая кабинка, Antonio Luppi; унитаз и биде, Villeroy & Boch, умывальник, Kohler
Смесители: Dornbracht
Освещение: Donolux
Хотите, чтобы ваш проект был опубликован на INMYROOM? Присылайте фотографии интерьера на wow@inmyroom.ru
Создайте интерьер с товарами из магазина InMyRoom:










































