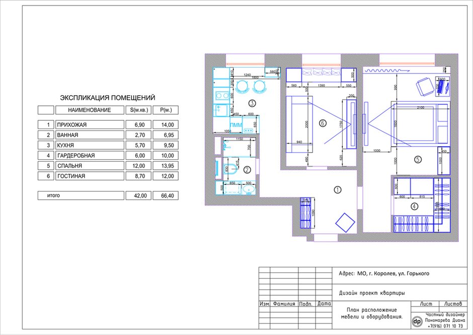
Задача: сделать привлекательной и удобной подмосковную «двушку» в многосекционном панельном доме, на первом этаже, с потолками 2,64 метра и крохотной кухней, использовать небольшую площадь по максимуму, то есть найти дополнительные места хранения, кроме отдельной гардеробной. Да, и попутно еще исполнить мечту.
Чтобы решить задачку, дизайнеру Диане Пономаревой пришлось сделать так, чтобы все функциональные элементы можно было использовать еще и для отдыха. Все началось с исполнения мечты хозяйки: ей хотелось, чтобы оконный проем стал зоной отдыха. В результате появилась идея снабдить встроенный книжный шкаф-стеллаж под окном мягким сиденьем.
Задачу хранения основной массы вещей взяла на себя гардеробная, но в каждом помещении были найдены неожиданные возможности спрятать от посторонних глаз мелкие предметы или одежду. В спальне, например, кровать поднята на подиум, в котором устроены вместительные ящики.
В прихожей предусмотрен небольшой платяной шкаф, в который можно убрать верхнюю одежду, и подвесная полка, заменяющая ключницу. Чтобы не перегружать маленькую кухню, дизайнер использовала только напольные шкафы, но полка, придуманная для того, чтобы замаскировать газовую трубу, тоже может использоваться для хранения.
В гостиной необходимо было продумать максимальное количество полок для книг – хозяйка собрала неплохую библиотеку. Вместе с мягким сидением на подоконнике и биокамином, расположенным вдоль одной из стен, книжные полки образуют комплект, вызывающий ассоциации с уютом и теплом домашнего очага. Хорошая книжка, огонь в камине, шумящие деревья за окном… Что может быть привлекательнее, когда устанешь от работы?
Для отделки дизайнер выбрала материалы, соответствующие скромному положению квартиры, но не скучные и приятные на глаз и на ощупь. Во всех помещениях для стен использовано декоративное покрытие под бетон, на пол везде, кроме спальни, уложена керамическая плитка под состаренное дерево в сочетании с теплым полом. В спальне вместо плитки – паркетная доска.
Имитация кирпичной кладки на акцентных стенах в разных помещениях – не просто прием, позволяющий сделать интерьер более интересным, но уважение к еще одной мечте хозяйки: ей нравится стиль лофт, который, к сожалению, требует совсем других объемов.
Но при осторожном использовании брутальные виды отделки, оказывается, способны творить чудеса – могут даже создать в маленькой «двушке» на первом этаже панельного дома атмосферу просторного чердака.
Планировка
Бренды, представленные в проекте
Холл
Отделка: краска, Pratta
Напольное покрытие: плитка, Tribeca Miel
Мебель: шкаф и полка изготовлены на заказ; пуф-бочка, Barrelbuffet Освещение: люстра, Grinder Top Loft Industrial Mill
Гостиная
Отделка: краска, Pratta; плитка под кирпич, Pixel-wood
Напольное покрытие: плитка, Tribeca Miel
Мебель: диван, ИКЕА; журнальный столик, Loft Art; полки и стеллажи изготовлены на заказ
Техника: топка для биокамина, Grand
Освещение: люстра и бра, Lussole Loft
Спальня
Отделка: краска, Pratta; плитка под кирпич, Pixel-wood
Напольное покрытие: инженерная доска, Bauwerk Unopark Vintage
Мебель: консоль и сундук, Loft-art; подиум, изготовлен на заказ
Декор: гримерное зеркало в деревянной раме, Skypointstudio
Освещение: накладной поворотный точечный светильник, Binoco; настольная лампа из водопроводных труб с выключателем в виде вентиля, Homeloftstudio
Кухня
Отделка: краска, Pratta; плитка под кирпич, Pixel-wood
Напольное покрытие: плитка, Tribeca Miel
Мебель: барная стойка из деревянного слэба, изготовлена на заказ; полка в виде водопроводных труб, Homeloftstudio; барный стул, Toledo Wood made by Cosmo
Освещение: люстра, Grinder Top Loft Industrial Mill; подвесной светильник, Loft Designe
Ванная комната
Отделка: краска, Pratta; плитка ручной работы, Plakart
Напольное покрытие: плитка, Tribeca Miel
Освещение: бра, Loft Industrial Glass
Хотите, чтобы ваш проект был опубликован на INMYROOM? Присылайте фотографии интерьера на wow@inmyroom.ru
Создайте интерьер с товарами из магазина InMyRoom:




































