Дизайн-проект можно считать удачно выполненным, когда он полностью отвечает желаниям и нуждам заказчика – эта квартира именно такая. Открытая планировка, место для приема гостей и танцев, удобное спальное место – дизайнер Даша Ухлинова создала идеальный интерьер для молодого холостяка.
Как таковая прихожая в квартире отсутствует – у входа расположена кухонная зона со столешницей-барной стойкой. Планировка гостиной довольно традиционная: несколько диванов и кресел, в центре которых поставили журнальный столик. Чтобы оборудовать спальню, дизайнер спроектировала лестницу и второй этаж – бонус высоких потолков.
«В отделке мы активно использовали состаренный кирпич, бетон и металл, чтобы подчеркнуть лофтовую стилистику и историю дома – раньше здесь был винный дом «Торговый домик К. Ф. Депре» – рассказывает дизайнер. – Грубую отделку уравновешивают классические стеновые панели, выкрашенные в белый цвет».
Мест для хранения немного и практически все они скрыты. Исключение – система закрытых и открытых полок под лестницей. Небольшую кладовую с постирочной зоной спроектировали под лестницей рядом с санузлом.
Основная мебель расположена в гостиной: классический английский диван, лаконичные кресло и оттоманка. Отлично «подружились» журнальный столик-слэб из дерева и железная бочка Chanel. В спальной зоне просто положили высокий матрас без основания. Комод из состаренного зеркала сливается с оградой – вот такой предмет-невидимка.
«Постеры во всей квартире – это ретрофотографии женщин, работающих на заводах, – рассказывает Даша Ухлинова. – Они подчеркивают брутальную стилистику интерьера, но при этом смягчают ее: даже на работе женщина остается женщиной».
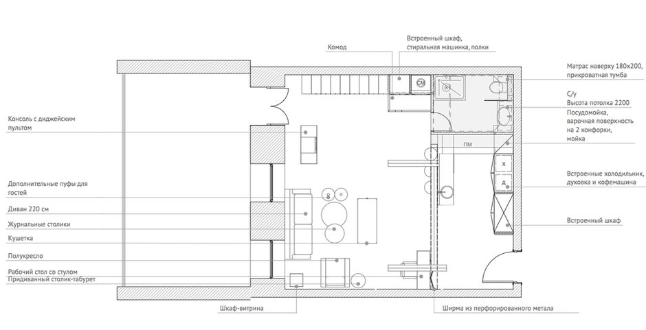
Планировка
Хотите, чтобы ваш проект был опубликован на INMYROOM? Присылайте фотографии интерьера на wow@inmyroom.ru
Вам также понравится:
Создайте интерьер с товарами из магазина INMYROOM:



























