Вкратце
Авторы проекта создали бюджетный вариант интерьера, напоминающий о роскошных квартирах в знаменитом «Доме на набережной» на Болотном острове. Для этого пришлось снести все стены в коммуналке, а оригинальные отделочные материалы заменить экономичными.
Подробности
Владельцы квартиры живут за городом, поэтому планировали сдавать ее в аренду. Но результат работы дизайнеров студии ZE-MOOV HOME настолько им понравился, что передавать ключи в чужие руки они не стали: в уютную квартиру переехала дочь заказчиков.
«Квартиру мы получили в крайне печальном состоянии, — рассказывают авторы проекта. — Долгое время она пустовала, а до этого была коммуналкой с несколькими крохотными комнатами».
Пришлось не только снести все перегородки, но и зачистить стены до кирпича. Его фактуру сохранили на внешней стене гостиной и спальни, покрасив прямо по кирпичу. А чтобы визуально отделить зону прихожей, но избавиться при этом от длинного темного коридора, установили стеклянную перегородку с графичным рисунком.
«Нам захотелось частично воссоздать стилистику, в которой были выполнены интерьеры „Дома на набережной“, поэтому мы изучили музейные фотографии, — рассказывают дизайнеры. — В интерьерах той эпохи присутствовали живописные росписи художников из Эрмитажа. Но мы придерживались определенного бюджета и использовали обои, которые имитируют некую художественную абстракцию».
Ремонт в квартире для сдачи в аренду должен был получиться бюджетным. Отделочные материалы выбирали качественные, но недорогие.
Из этих соображений для отделки стен использовали краску и обои, а в мокрых зонах — керамогранит. Дубовый паркет на полу заменили ламинатом под дуб. А близкую к оригиналу лепнину использовали в отделке стен и потолка.
В квартире не так много мест хранения, но девушке их вполне хватает. В спальне всю ширину стены занял встроенный шкаф, а в прихожей появилась мини-гардеробная. По ширине она сравнима с обычным шкафом, но намного глубже. Здесь удобно поставить чемодан или другие крупногабаритные предметы.
Общий фон квартиры нейтральный, кофейно-молочный. Единственным ярким пятном стал голубой диван в гостиной, который исполняет роль цветового акцента. На самом же деле создатели интерьера едва не отказались от него.
«Диван оказался больше, чем мы закладывали в проекте, — делятся дизайнеры. — И вначале, как только его поставили, мы даже собирались вернуть его и заменить более компактным. Но стоило на него присесть, как все сомнения отпали. Это действительно такой диван, с которого не хочется вставать!»
Атмосферу уюта создали при помощи деталей. В простенке между окнами в столовой появился декоративный камин с поленьями. Над ним разместили полочку с памятными фотографиями, которые повесили и на стену. А винтажный декор соседствуют с минималистичными светильниками, создавая микс современного и классического интерьеров.
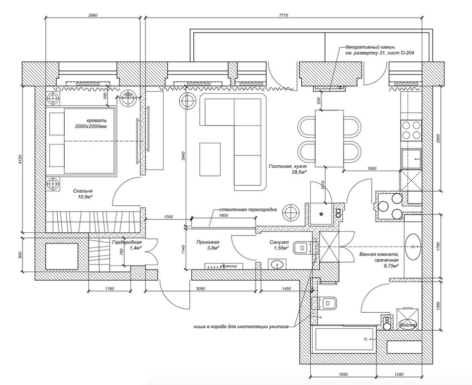
Планировка
Фото квартиры до ремонта
Эскизы
Бренды, представленные в проекте
Холл
Отделка: краска; стеклянная перегородка, на заказ, орнамент по эскизам студии ZE-MOOV HOME
Напольное покрытие: плитка, Italon
Освещение: люстра, KARE Design
Гостиная-кухня-столовая
Отделка: краска; плитка, Italon
Напольное покрытие: ламинат, Balterio Tradition Duo Tasmania; плитка, Italon
Мебель: диван, Estetica; обеденный стол, стулья, столик журнальный, ТВ-тумба — KARE Design
Двери: Union
Декор: буквы, ZE-MOOV HOME
Освещение: люстра и торшер — Flos (реплики); люстра и бра — Massive
Спальня
Мебель: кровать, Sleepy Sleep
Декор: KARE Design
Освещение: настольные светильники, KARE Design
Ванная комната
Отделка: плитка, Italon
Напольное покрытие: плитка, Italon
Мебель: тумба под раковину, на заказ
Кабина/ ванная/ санфаянс: Vitra
Декор: Zara Home
Текстиль: Zara Home
Смесители: Hansgrohe
Освещение: встроенные светильники, Ecola; бра, Eglo
Гостевой санузел
Отделка: плитка, Kerama Marazzi
Напольное покрытие: плитка, Kerama Marazzi
Кабина/ ванная/ санфаянс: Vitra
Смесители: Hansgrohe
Хотите, чтобы ваш проект был опубликован на INMYROOM? Присылайте фотографии интерьера на wow@inmyroom.ru















