Вкратце
Владельцы квартиры планируют сдавать ее в аренду, поэтому бюджет проекта минимальный, а отделка и мебель — износостойкие. Архитекторы бюро INT2architecture пустили открытую проводку прямо по бетонному потолку, покрасили стены без предварительного выравнивания и оформили их досками. А в качестве мебели использовали находки с блошиных рынков, промышленные шкафы, а также кухонную мебель из нержавейки для баров и ресторанов.
Подробности
Студия в Сокольниках — настоящий лофт. Почти полвека в кирпичном здании располагалось авиационное конструкторское бюро, а в 2000-е годы его переделали в комплекс апартаментов. Эту историческую деталь архитекторы использовали как отправную точку при выборе стилистики проекта.
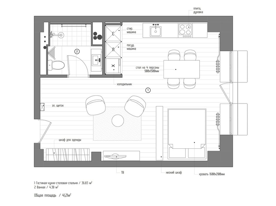
Поскольку студия предназначена для сдачи в аренду, бюджет был небольшой. Расходовать его на перепланировку и возведение стен не стали. Вместо этого пространство кухни, столовой, гостиной и спальни оставили единым и зонировали при помощи мебели.
Главным требованием к отделке была ее износостойкость и дешевизна. Поэтому стены не стали выравнивать. На них небрежно нанесли тонкий слой штукатурки и покрасили, чтобы немного затереть чересчур ровную новую кирпичную кладку. На пол уложили шпунтованную доску. А бетонный потолок «от строителей» с открытой проводкой отлично вписался в стилистику лофта.
Санузел снаружи оформили российской амбарной доской, которая столетиями приобретала свой внешний вид под воздействием погодных условий. Она же маскирует дверь и становится своеобразным обрамлением для кухонного блока.
В деревянный каркас встроили сварной стеллаж из шлифованной нержавеющей стали для бытовой техники. «Этот материал легко моется, стоек к коррозии, максимально устойчив к любым повреждениям, вмятинам и царапинам, что гарантирует длительную эксплуатацию кухни», — делятся секретом авторы проекта.
Основная система хранения сосредоточена в прихожей. Здесь установили металлические универсальные шкафы с антресолью, которые обычно используют для хранения сменной одежды в офисах, спортзалах и производственных помещениях. Прямо на месте их перекрасили в цвет стен. А низкий стеллаж предназначен не только для хранения книг, но и для зонирования спальни и гостиной.
Нестандартно подошли и к выбору мебели. На кухне появились производственные столы из нержавеющей стали, которые обычно используются на кухнях баров и ресторанов. Обеденный стол на сварном металлическом каркасе сделали на заказ. А вместо гардероба в прихожей появились промышленные шкафы из металла.
Дополнили интерьер винтажными деталями, которые нашли на блошиных рынках и интернет-аукционах. Так появились обеденные стулья, подстолье для раковины в санузле и предметы декора.
«В качестве подстолья для раковины в санузле использован винтажный швейный стол Singer. В небольших выдвижных ящиках можно хранить косметику и другие мелкие вещи», — рассказывают архитекторы.
Планировка
Бренды, представленные в проекте
Гостиная-кухня-столовая-спальня
Отделка: амбарная доска, Greyboard; краска, Dulux Vinyl Matt
Мебель: обеденный стол, стеллажи, ящики — на заказ, мастерская Greyboard; кровать, ИКЕА; кресла, Westeny; кофейный столик, Cage, La Redoute; обеденный стулья, винтаж
Гарнитур: на заказ
Текстиль: La Redoute
Бытовая техника: Bosch
Смеситель на кухне: ИКЕА
Освещение: люстра, Castello, Lightstar; бра у кровати, Game, House Doctor; подсветка шкафа, ИКЕА
Ванная комната
Отделка: плитка, Vitra Architekt color, Chic, Dual Gres; дверь в ванну, Union, Chameleon
Мебель: лестница и табурет — Teak House; зеркало над раковиной, ИКЕА; подстолье под раковину, винтаж
Кабина/ ванная/ санфаянс: раковина, Melana; унитаз, BelBagno
Смесители: Veragio
Освещение: светильник у раковины, Hubsch
Хотите, чтобы ваш проект был опубликован на INMYROOM? Присылайте фотографии интерьера на wow@inmyroom.ru
















