В нашей подборке — реальные примеры небольших однокомнатных квартир, в которых профи разместили все, что нужно для комфортной жизни.
Превратить в двушку
Площадь: 47 кв. м
Дизайнер Яна Грошева превратила однушку в блочной новостройке в двухкомнатную квартиру с кухней-гостиной. Для этого потребовалось лишь перенести дверной проем и установить вместо обычной балконной двери распашную. Минимальная перепланировка сделала зону гостиной одновременно более уютной и функциональной.
Планировка
Обойтись без перепланировки
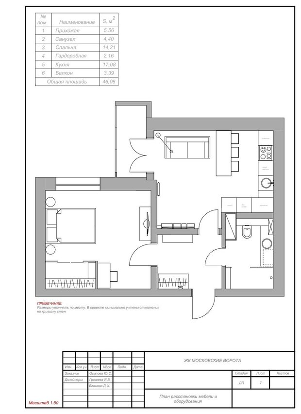
Площадь: 50 кв. м
Планировку этой кирпичной новостройки не меняли — несущие стены не позволяют кардинальных перемен. В единственной жилой комнате, пусть и довольно просторной, нужно было расположить несколько функциональных зон. Здесь появились гостиная, спальня, мини-кабинет и вместительные системы хранения.
Планировка
Обыграть неудачную исходную планировку
Площадь: 56 кв. м
Скромную по площади кухню объединили с гостиной, чтобы комната казалась более просторной и воздушной. Спальню расположили в самой темной части квартиры. Чтобы туда поступал естественный свет, в глухую стену вмонтировали ажурную резную перегородку.
Планировка
Обустроить открытое пространство
Площадь: 52 кв. м
Заказчик захотел обустроить в однокомнатной квартире спальню, гардеробную комнату, кухню, столовую и гостиную. Благодаря оригинальной планировке разместили все требуемые помещения не в ущерб проходным зонам. Это открытое пространство, по которому можно передвигаться разными маршрутами, в нем нет жесткого входа-выхода, и с разных ракурсов оно открывается по-новому.
Планировка
Использовать для зонирования портьеры
Площадь: 37,5 кв. м
От перепланировки отказались сразу — в итоге здесь отдельная кухня и комната, которая совмещает в себе гостиную и спальню. Причем спальню от гостиной зоны отделяют светлые шторы в пол — такое решение очень просто реализовать самостоятельно.
Планировка
Оборудовать стеклянную перегородку
Площадь: 44 кв. м
Планировка:
Или перегородку из дерева
Площадь: 43 кв. м
Отличный вариант для тех, кому нужно уложиться в бюджет. Особенно эффектно такой прием смотрится, если в дополнение к нему использовать для каждой зоны свой цвет отделки — как сделала Наталья Краснобородько в этом проекте.
Планировка
Использовать барную стойку
Площадь: 43 кв. м
«Я немного подкорректировала планировку, — рассказывает Алла Мерчи. — Однокомнатная квартира у нас стала полноценной двухкомнатной. Барная стойка зонировала пространство гостиной-кухни, но не утяжелила его. А спальня стала очаровательным альковом напротив окна, чтобы можно было встречать рассвет и провожать закат».
Планировка
Выбрать мебель-трансформер
Площадь: 29,5 кв. м
Основной инструмент расширения пространства в этой хрущевке — трансформируемая мебель. Диван превращается в кровать, шкаф — в рабочее место, а панель для телевизора — в еще одно спальное место. И превращаются настолько легко, что собрать и разобрать все это, по мнению автора проекта, сможет даже хрупкая девушка.
Планировка
Отказаться от спальни
Площадь: 38 кв. м
Самый простой способ обустроить однушку и сэкономить место — обойтись без полноценной спальной зоны. Просто поставьте в комнате удобный раскладной диван-кровать, на котором ночью будет удобно спать, а днем — принимать гостей или читать любимую книгу.
Планировка
Сделать ставку на минимализм
Площадь: 33 кв. м
Если места совсем мало — как в этой квартире, — лучше оформить интерьер с минимальным количеством декора. Так хотя бы визуально все помещения станут просторнее.
Планировка
Сделать из лоджии еще одну комнату
Площадь: 51 кв. м
Основные требования заказчика: интерьер должен был получиться универсальным, современным, с удобными зонами для сна и приготовления пищи.
Чтобы обустроить такое пространство, дизайнер Екатерина Кондратюк предложила оформить спальню в нише, а утепленную лоджию использовать как гостиную.
Планировка
На обложке: дизайн-проект Екатерины Кондратюк






















