Вкратце
Чтобы оформить интерьер для современной пары, предпочитающей активный образ жизни, дизайнеры сделали ставку на светлую цветовую палитру с цветными деталями. В ход пошли обои с интересным геометрическим принтом, пестрая плитка и мебель с акцентной обивкой.
Подробности
Заказчики — молодая семья с собакой породы бигль, в перспективе — рождение детей. Поэтому им важно было получить интерьер, который легко трансформировать. «Помимо функциональности ребята попросили сделать интерьер фотогеничным, — рассказывают дизайнеры студии Quadrum. — Чтобы было много красивых ракурсов: заказчица увлекается фотографией — ну, и про соцсети не забывает».
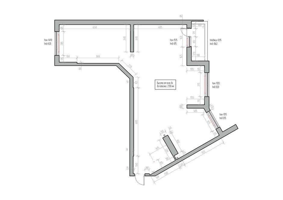
Форма квартиры довольно нестандартная. В результате перепланировки сделали объединенную кухню-гостиную, спальню и кабинет — через некоторое время он превратится в детскую. Санузел один и находится рядом с прихожей.
Основные материалы отделки — краска и обои. Их легко заменить по настроению. На пол даже на кухне положили ламинат — нужно было уложиться в бюджет. Плитку для кухонного фартука и пола в прихожей взяли с принтом — она делает интерьер интереснее.
Мест хранения много: например, в спальне есть большая гардеробная — одно из пожеланий заказчиков. В кабинете тоже предусмотрели вместительный шкаф для одежды и личных вещей. На стеллажах в гостиной хранится коллекция книг — здесь для них самое удачное место.
«Заказчики были против очень ярких цветов в интерьере, поэтому за основу мы взяли серую цветовую палитру и разбавили ее голубыми и синими оттенками. Получилось современно и не скучно», — рассказывают авторы проекта.
Настроение добавили также с помощью декора: забавные постеры, красочные картины, вазы с цветами и сувениры. Для окон подобрали легкий текстиль из натуральных материалов, а из тканей-компаньонов сшили декоративные подушки — то, что нужно для домашнего уюта.
Планировка
Бренды, представленные в проекте
Холл
Отделка: краска, Little Greene; обои, Eco, коллекция Black and Whitе
Напольное покрытие: плитка, Vives Ceramica, Vives Maori
Гостиная
Отделка: краска, Little Greene; обои, Eco, коллекция Reflections
Мебель: кресло, Calligaris Lazy; табуреты, Kare Design
Ковер: Calligaris Arabia
Текстиль: подушки, Kare Design, Missoni Home
Декор: картина, работа художника Надежды Шанаевой
Освещение: люстра, Crysral Lux Medea; освещение барной стойки, Eglo
Спальня
Отделка: краска, Little Greenе; обои, Osborne & Little, коллекция Peacock
Освещение: бра, Lightstar Otto; люстра, Eglo Falcado
Кухня
Отделка: краска, Little Greenе
Мебель: стулья, Calligaris Etoile; барные стулья, Cattelan Italia Isabel
Бытовая техника: техника, Midea
Освещение: люстра, Crysral Lux Medea
Ванная комната
Отделка: плитка, Marazzi architettura
Напольное покрытие: плитка, Mainzu Victorian
Смесители: Kaiser
Освещение: бра, Crystal Lux Bolla
Кабинет
Отделка: краска, Little Greenе; обои, Borastapeter, коллекция Scandinavian Designers
Мебель: диван, Kare Design Bruno; пуф, Ulivi; рабочее место, Kare Design
Декор: картины, работа художника Надежды Шанаевой
Освещение: бра, Lightstar Loft; торшер, Kare Design
Хотите, чтобы ваш проект был опубликован на INMYROOM? Присылайте фотографии интерьера на wow@inmyroom.ru




























