Перед Никитой Зубом стояла непростая задача. Владелица квартиры просила разместить на 35 квадратах все функциональные зоны, при этом оставить место для творчества и встреч с друзьями и заказчиками. Какие решения он предложил? Рассказываем.
Дано
Площадь квартиры: 35 кв. м. без балкона
Комнаты: 1
Санузел: 1 (не участвовал в планировке, так как уже был сделан)
Плита: электричество
Заказчик: женщина, работает в сфере искусства
Пожелания: выделить небольшую кухню, предусмотреть гостиную зону, оставить место для полноценной кровати и разместить пианино, а также найти место для коллекции антиквариата.
Вариант 1: спальня на месте кухни
- В прихожей сделали небольшую гардеробную.
- Кухню перенесли и совместили с гостиной зоной, разместили ее в одну линию, предусмотрели место для посудомоечной машины, духовки, СВЧ-печи.
- Выбрали двухконфорочную плиту, чтобы оставить больше места для рабочей зоны.
- Обеденный стол поставили у стены между окнами.
- Кровать разместили в нише на месте кухни. Чтобы сделать эту зону более приватной, предусмотрели шторы.
- Пианино поставили рядом с диваном вдоль стены.
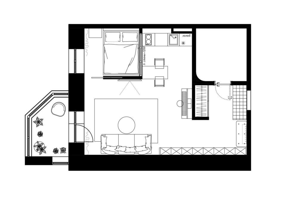
Вариант 2: спальня в нише
- Кухню оставили в том месте, где она планировалась застройщиком, сделали еще компактнее, заменили обеденный стол барной стойкой. От посудомоечной машины отказались.
- Зону спальни перенесли ближе к окну, отделили ее от кухни перегородкой высотой 1,2 метра (потолки — 2,7 метра).
- Кровать разместили в построенной нише, сделав подход к ней только с одной стороны.
- Диван и телевизор поменяли местами, разместив последний на стене с обратной стороны от кровати.
- В прихожей поставили шкаф, чтобы компенсировать отсутствие полноценной гардеробной.
- Пианино приставили к небольшой перегородке, которая отделяет зону прихожей от гостиной.
На обложке: дизайн-проект Никиты Зуба




