Вкратце
Чтобы создать интерьер «на века», авторы проекта сделали ставку на спокойную серо-бежевую отделку. В ход пошли натуральное дерево и камень: чтобы акцентировать на них внимание, хранение убрали в гардеробные, а телевизор спрятали за декоративными панелями.
Подробности
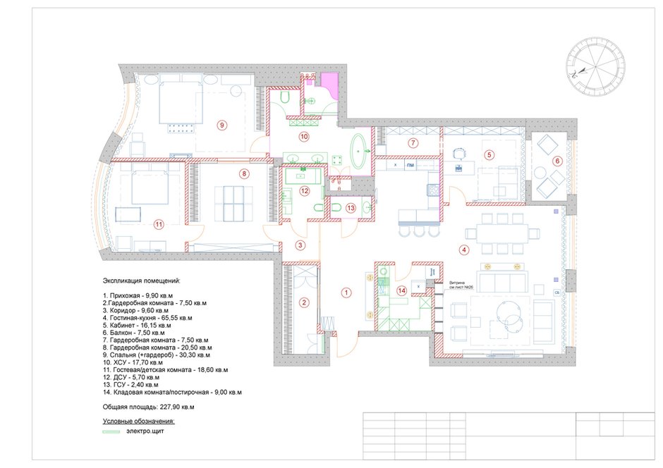
Требовался стандартный набор помещений: гостиная, кухня, спальня и детская, кабинет, несколько санузлов и вместительная гардеробная.
Окна в квартире выходят на две противоположные стороны: архитекторы спланировали пространство так, что личные комнаты с отдельными ванными находятся слева от входа, гостиная с кухней — справа, а между ними обустроили хозяйственные помещения, которым не нужен естественный свет.
Отсутствие коридоров — еще одно пожелание заказчиков, которое отразилось в планировке: все помещения словно перетекают друг в друга.
Квартиру оборудовали системой «умный дом» с регулировкой климата, подогревом полов и увлажнением воздуха, систему кондиционирования (точнее, все решетки) спрятали и сделали невидимыми. Удобно, что застройщик еще на этапе строительства заложил возможность устройства водяного подогрева полов.
Заказчица любит изящные дизайнерские вещи, уникальный дизайн и эксклюзивную отделку. «Еще в первом письме она написала, что на кухню планирует купить посуду из коллекций Hermes и бокалы из цветного хрусталя Baccarat. А один из ее любимых стилей — ар-деко.
Стало понятно: здесь должны быть только самые красивые отделочные материалы. Для жилых комнат выбрали натуральное дерево, в мокрых зонах положили натуральный мрамор плюс панно из мрамора и стекла в хаммаме и гостевом санузле», — рассказывают авторы проекта.
Для стен отлично подошло декоративное покрытие с фактурой гипса, шелковые обои на стенах в спальне. Гостиную украсили четырьмя панелями из наборного шпона под глянцевым лаком: за ними спрятан телевизор (у двух передних панелей есть электропривод).
В прихожей геометрическое панно выполнили из трех видов мрамора: Bianco Carrara, Nero Marquina и Jaguar. Внимание в хозяйском санузле привлекает уникальная ванна: она выполнена из целого куска мрамора с колотой поверхностью.
На 240 квадратных метрах архитекторы спроектировали несколько гардеробных: самая большая в жилой зоне объединяет спальню заказчиков и детскую. Шкафы со стеклянными фасадами установили напротив друг друга, а в центре разместили вместительный «остров» с многочисленными ящиками.
В прихожей гардеробная служит для хранения сезонной верхней одежды. Для чемоданов и спортивного инвентаря предусмотрели отдельную систему хранения в кабинете. А в постирочную убрали все постельное белье, полотенца и средства для уборки.
Весь интерьер выдержали в серо-бежевых тонах с голубыми, фиолетовыми и лиловыми акцентами. В отделке мебели и декоре использовали холодный серебристый металл. Такая обстановка стала отличным фоном для дизайнерской мебели и декора.
«Еще на этапе работы над планировкой заказчики купили большую люстру из белой керамики, две синие настольные лампы и коллекцию кораллов — для них мы спроектировали открытый стеллаж в гостиной, — рассказывают авторы проекта.
Ярких красок мы добавили с помощью шерстяного и шелкового текстиля Christian Lacroix, развесили картины современных художников. Не обошлось и без настоящего антиквариата: заказчица привезла из Парижа оригинал скульптуры Модильяни — она стала завершающим штрихом в оформлении интерьера».
Планировка
Бренды, представленные в проекте
Холл
Отделка: обои, Carl Robinson
Напольное покрытие: мрамор Bianco Carrara
Мебель: комод, Visionnaire; зеркало, Fiam
Освещение: лампы, Porta Romana
Гостиная
Мебель: JNL; Fendi
Ковер: Jan Kath
Текстиль: Christian Lacroix
Освещение: люстра, IPM
Спальня
Мебель: мебель, JNL
Ковер: Jan Kath
Освещение: Modular
Детская
Отделка: обои, Osborne & Little
Мебель: Halley World
Текстиль: Osborne & Little
Освещение: Masiero; лампы, Lladro
Кухня
Мебель: барные стулья, Flexiform
Гарнитур: Poggenpohl
Смесители: Kohler
Освещение: Modular
Ванная комната
Отделка: мрамор Bianco Statuario + Nero Marquina
Напольное покрытие: мрамор Nero Marquina
Мебель: Milldue
Смесители: Fantini
Освещение: Modular
Хотите, чтобы ваш проект был опубликован на INMYROOM? Присылайте фотографии интерьера на wow@inmyroom.ru

























