Вкратце
Марии Бердниковой надо было оформить дом из клееного бруса так, чтобы интерьер был современным, но уютным. Выполнить задачу дизайнеру помогли природные цвета, натуральные материалы и сдержанный стиль с нотками прованса.
Подробности
Мария Бердникова назвала этот проект «Ранчо» — деревянный дом в Дмитровском районе Московской области она оформляла с оглядкой на традиционные американские сельские дома.
Обитатели ранчо любят простор и гармонию с природой, поэтому в отделке дома дизайнер старалась избегать излишнего украшательства, отдавая предпочтение натуральным материалам и цветам.
Стены дома из клееного бруса сами по себе очень выразительные, поэтому отделка подбиралась деликатно, в соответствии с общей стилистикой. Пол в гостиной — особая гордость хозяев (бренд Porcelanite Dos, коллекция Roble). Очень хотелось сделать его из дерева, но конструкторы и теплотехники рекомендовали теплые полы и керамогранит.
«Теперь гости восхищаются: какая классная доска на полу! » — рассказывает Мария. Фактура керамогранита, по ее словам, в точности копирует натуральное дерево, в том числе и по тактильным ощущениям. На втором и третьем этаже на полу паркет из лиственницы.
Отделка камина в гостиной намеренно не строгая, игривая. Топка Prima швейцарской фирмы RUEGG, отделка керамогранитом фирмы Porcelanite Dos и массивом лиственницы.
Пол в холле, в столовой и на кухне выложен плиткой Porcelanite Dos, коллекция Tierra. В ванной комнате, оформленной в стиле ретро, на полу плитка фирмы Azuliber с винтажным синим орнаментом и вставками с фактурой дерева в цвет деревянной мебели. В гостевом санузле на стенах плитка с ярким принтом рисунка осенних листьев испанской фирмы Realonda, на полу керамогранит под мокрое дерево Natural Antislip фирмы Porcelanite с антискользящим покрытием.
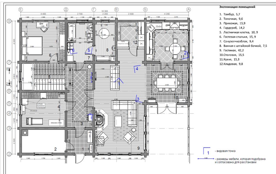
Планировка традиционная для загородного дома: на первом этаже — гостиная, столовая, кухня и гостевая спальня. Здесь же находится большая гардеробная, в которую можно попасть из прихожей, а рядом с кухней — кладовая.
На втором этаже — три спальни, кабинет, библиотека, для которой по эскизам дизайнера был изготовлен на заказ стеллаж с резными решетками и орнаментом на стенках и дверцах, ванная комната и еще одна гардеробная. На третьем — свободное пространство, условно названное комнатой отдыха.
Дав дому название «ранчо», Мария не пыталась оформить его в точности как американский сельский дом. «У нас не было стремления к четкой взаимосвязи помещений, выдержанности стиля, — говорит дизайнер. — Дали волю изящным экспериментам и милым сердцу деталям».
На кухне, в гостевом санузле и библиотеке было решено использовать элементы стиля прованс. А вот в гостиной, которая будет наполняться мебелью постепенно, предполагается вернуться к образу ранчо. Брутальный камин здесь уже есть, осталось подобрать к нему соответствующую обстановку.
Планировка
Бренды, представленные в проекте
Холл
Напольное покрытие: керамонранит, Porcelanite Dos, коллекция Tierra
Гостиная
Напольное покрытие: керамогранит Porcelanite
Dos, коллекция Roble
Кухня
Напольное покрытие: керамогранит Porcelanite
Dos, коллекция Tierra
Главная спальня
Напольное покрытие: паркет из лиственницы
Ванная комната
Напольное покрытие: плитка, Azuliber, коллекция Talavera
Мебель: Godi
Гостевой санузел
Отделка: плитка, Realonda
Напольное покрытие: керамогранит, Porcelanite
Сантехника: Villeroy & Boch
Хотите, чтобы ваш проект был опубликован на INMYROOM? Присылайте фотографии интерьера на wow@inmyroom.ru



















