Вкратце
Кристина Изотова создала комфортный интерьер для семьи с двумя детьми. Для этого дизайнер изучила образ жизни семьи и учла потребности каждого. В кухне предусмотрели две рабочие поверхности, в детской — дополнительное спальное место, а в шкафу в прихожей даже спрятали розетки для мобильного пылесоса.
Подробности
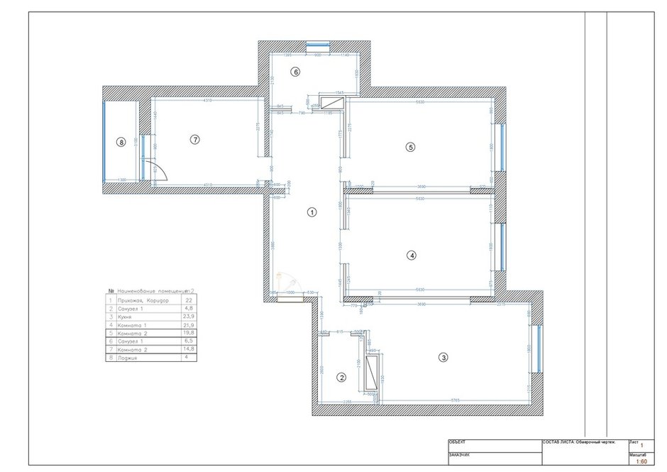
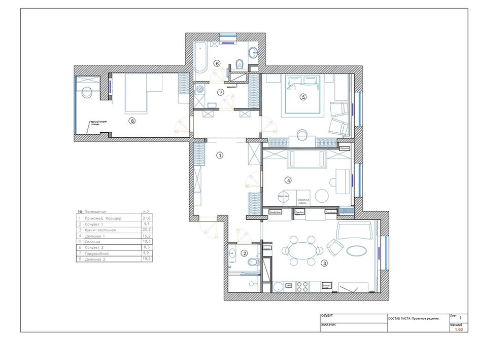
Планировка позволила создать и общую зону отдыха, и комфортные личные пространства для каждого члена семьи: просторную спальню для родителей и две детские комнаты. Все помещения остались в своих границах, к тому же часть коридора отдали под гардеробную.
В отделке за основу взяли благородные материалы светлых тонов. Главный ориентир при выборе — эффектные текстуры и практичность. Для общей зоны выбрали светлый керамогранит, для жилых комнат — инженерную доску теплого оттенка. Стены покрасили моющейся краской, ведь в квартире живут дети.
Особое внимание уделили функциональным системам хранения. Площадь квартиры использовали по максимуму: нашлось место и для отдельной гардеробной, и для шкафов с верхней одеждой и обувью в холле, и даже для вместительного хозяйственного шкафа, где оборудовали розетку для мобильного пылесоса.
В одной из детских комнат в кровать встроили выдвигающийся спальный блок с дополнительным матрасом — на случай, если кто-то будет ночевать на кровати вместе с ребенком. Во второй детской выделили рабочий уголок — здесь можно хранить книги, канцелярию и делать уроки. Кстати, всю мебель в проекте делали на заказ — составляли индивидуальный проект с учетом масштабов помещений и потребностей заказчиков.
В оформлении за основу взяли современную классику, но нашлось место и более ярким акцентам. Оттенки белого, серого и бежевого разбавили голубой, синий, красный и зеленый цвета. Лепнина, карнизы, молдинги тоже сумели подружиться со стильной современной мебелью. «Дуэт классики и современности помогает удачно обыграть пространство, где не хватает объема», — говорит дизайнер.
Планировка
Бренды, представленные в проекте
Холл
Отделка: краска, Little Greene
Напольное покрытие: керамогранит, Rex
Мебель: на заказ
Гостиная
Отделка: краска, Argile
Напольное покрытие: The Mar Sant Agostino
Мебель: стулья, Seven Sedie; все остальное наполнение изготовлено на заказ
Техника: Liebherr; Neff
Освещение: Garda Decor
Декор: Zara Home
Спальня
Отделка: краска и обои, Little Greene
Мебель: на заказ
Освещение: люстра, Masiero
Детская
Отделка: краска, Little Greene
Мебель: на заказ
Кухня
Отделка: краска, Argile
Напольное покрытие: The Mar Sant Agostino
Мебель: на заказ
Смесители: Blanco
Освещение: Garda Decor
Ванная комната
Отделка: плитка, Cinca; краска, Little Greene
Напольное покрытие: плитка, Cinca
Мебель: на заказ; радиатор, Zehnder
Ванная/санфаянс: ванна, Astraform; унитаз, Simas Arcade
Смесители: Grohe Atrio
Хотите, чтобы ваш проект был опубликован на INMYROOM? Присылайте фотографии интерьера на wow@inmyroom.ru
























