Вкратце
В этой квартире живет молодая пара. Когда они купили жилье, планировали сделать ремонт самостоятельно, поэтому сами выбрали материалы и занялись отделкой. Но спланировать пространство, грамотно его зонировать, спроектировать системы хранения и гармонично расставить мебель без профессионалов нелегко, и молодые люди обратились к дизайнерам. В итоге получился идеальный результат: профи разместили на небольшой площади гостиную, спальню, кухню и рабочее место, продумали системы хранения и даже учли любовь заказчиков к чтению книг.
Подробности
Дизайнеры взялись за проект, когда в квартире одна из стен уже была вымощена бежевым кирпичом, на полу лежали паркет и плитка, были установлены двери. Владельцы не хотели ничего переделывать, поэтому пришлось отталкиваться от того, что есть.
Первым делом пространство выровняли по цвету. Кирпич перекрасили в белый и добавили деревянные ламели в зоне отдыха и на кухне. Это добавило помещению целостности и уюта.
Зонировать пространство помогли уже установленные хозяевами стеклянные раздвижные двери. Они четко сформировали зональность и изолировали помещения. В то же время прозрачные дверные проемы создали ощущение большого и объемного пространства.
Основная комната разделена на две полноценные зоны: гостиную и спальню. Их отделяют друг от друга шторы: белые со стороны гостиной и темно-зеленые со стороны спальни. Плотная ткань не пропускает свет и ограждает спальное место от посторонних звуков.
Подиум, на котором установили кровать, четко обозначает зону отдыха. В то же время он служит дополнительным посадочным местом для гостей, если им не хватит места на диване.
Зона для гостей получилась самой яркой во всей квартире за счет синего дивана, желтого кресла и оригинальных журнальных столиков.
«В гостиной можно наслаждаться видом из окна или, уютно устроившись в кресле, прочесть книгу. Она берет на себя основное внимание: именно здесь происходит игра цвета. Это позволяет „отодвинуть“ зону отдыха на второй план», — рассказывают дизайнеры.
Поломать голову авторам проекта пришлось над обустройством кухни, где нужно было максимально задействовать пространство и не менять коммуникации. Мебель изготовили на заказ.
Навесные шкафы сделали под потолок, чтобы выровнять общую линию с деревянными панелями и дать дополнительные места для хранения. Сюда же отлично вписался асимметричный стол с лаконичными стульями.
Рабочую зону организовали на небольшой лоджии, которую объединили с кухней. «Хозяева предусмотрели здесь место для работы или завтраков у окна. Мы добавили в эту зону яркое пятно — желтые стулья Pedrali. Они оживили лоджию и добавили акцент в монохромное пространство», — объясняют дизайнеры.
Не забыли и про хобби владельцев квартиры — чтение. Предусмотрели широкие полки в зоне подиума, металлический стеллаж в гостиной и удобные светильники в изголовье кровати для чтения перед сном.
И, конечно, места для хранения: их в квартире получилось немало. Большинство предметов выполняет еще и функцию зонирования. Например, стеллаж за диваном отделяет гостиную от выхода в прихожую, а шкаф в гостиной отгораживает спальное место от основного пространства.
Большой шкаф есть и в прихожей. А в подиуме под кроватью спрятаны выдвижные ящики, куда можно положить разные вещи: например, подушки и одеяла для гостей и даже лыжи.
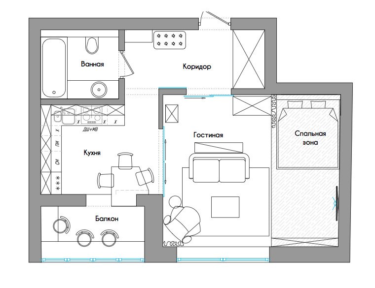
Планировка
Бренды, представленные в проекте
Мебель: диван, Innovation; кресло, Theca; журнальные столики, Mexo
СпальняОсвещение: светильники, Artemide
Кухня
Мебель: стулья, Pedrali; стулья, Vitra
Хотите, чтобы ваш проект был опубликован на INMYROOM? Присылайте фотографии интерьера на wow@inmyroom.ru





















