Вкратце
Сразу не подумаешь, но в этой квартире живет молодая девушка-студентка. Заказчице не близок «девчачий» стиль, поэтому дизайнеры Алена Симонова и Ирина Шестопалова оформили для нее пространство в лофтовой стилистике: с черными стенами, кирпичом и металлическими светильниками.
Подробности
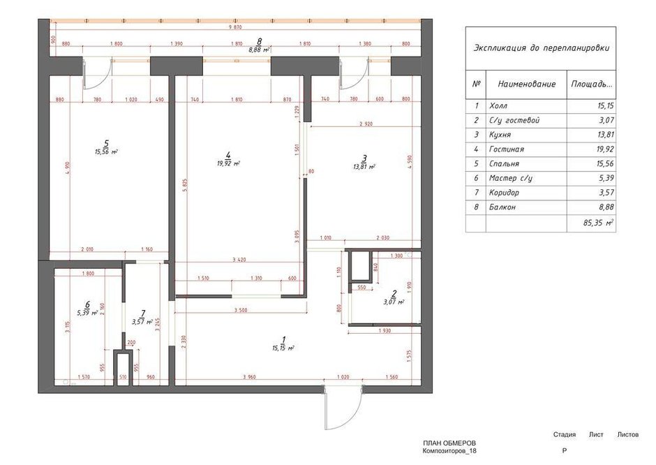
Сначала была перепланировка. Первым делом демонтировали стену между гостиной и прихожей и заменили ее на высокий стеллаж с комбинацией открытых и закрытых полок. Проем между кухней и комнатой увеличили, а вот гостевой санузел, наоборот, уменьшили, чтобы сделать удобный проход в общую зону. Спальню сделали отдельной зоной с собственной ванной, небольшим коридорчиком и выходом на застекленную лоджию.
Для отделки выбрали декоративную штукатурку. «Это универсальный материал, хорошо подходит для мест общего пользования. Эффект бетона, грубой поверхности в кухне-гостиной сыграл нам на руку — отлично сочетается с кирпичной кладкой, — рассказывает Алена Симонова. — Кухонный фартук выполнили из керамогранита в цвет стен».
В спальне помимо темной штукатурки использовали краску. В результате деревянные панели выигрышно смотрятся на бархатистой поверхности насыщенного зеленого цвета. Для пола взяли паркет и керамогранит.
В ванной комнате дизайнеры применили похожую отделку: одна из стен оформлена серой штукатуркой, для контраста добавили керамогранит под дерево. Материалы — разные по цветовой гамме и фактурам и в то же время хорошо сочетаются друг с другом.
Акцентом выступили шестигранники испанской фабрики Bestile. Для обоих санузлов на заказ изготовили тумбы со столешницами из натурального камня.
Помимо вместительного шкафа в спальне в коридоре разместили большой шкаф для верхней одежды и крупных вещей. Плюс сделали гардеробную при входе, в которой удобно хранить обувь, чемоданы. На лоджии нашлось место для мини-диванчика с выдвижными ящиками и шкафчиками в основании.
Стиральная машина вынесена в «карман» между коридором и хозяйским санузлом. Техника скрыта дверками, за которыми также расположены коллектор отопления и полки для бытовой химии. Эту и другую встроенную мебель изготовили на заказ в столярных мастерских в Санкт-Петербурге.
«Цветовую гамму определил стиль интерьера. Несмотря на то, что проект разрабатывался для молодой девушки, мы согласовали строгую палитру, состоящую из двух-трех цветов. Спальня стала самым ярким помещением», — рассказывают дизайнеры. Микс зеленых, бежевых и оранжевых оттенков делает пространство дружелюбнее и жизнерадостнее.
Индивидуальность проекта подчеркнули мебелью, сделанной на заказ. Почти все позиции изготовили в Санкт-Петербурге, а итальянскую мягкую мебель заказывали у официальных представителей.
Декора немного: его тщательно выбирали в салонах города. А постеры заказали непосредственно у фотографов. Возьмите на заметку: если вы ищете классные фото для украшения дома, не стесняйтесь писать напрямую понравившимся фотографам на почту и в соцсетях.
Планировка
Бренды, представленные в проекте
Холл
Напольное покрытие: керамическая плитка, Bestile
Гостиная
Напольное покрытие: паркет, TarWood
Мебель: диван, кофейный столик, все — Natuzzi Italia; очаг камина, Realflame
Ковер: Natuzzi Italia
Декор: B-Home; Natuzzi Italia; Zara Home
Спальня
Напольное покрытие: паркет, TarWood
Мебель: кровать, Noctis; прикроватные столики, Zara Home, Natuzzi Italia; рабочий стол выполнен по эскизам дизайнеров, студия «Папа Карло»
Текстиль: студия «Феличита»
Декор: настенный декор, Umbra
Освещение: подвесные светильники, Flos
Кухня
Напольное покрытие: керамическая плитка, Cicogres
Мебель: барная стойка, студия «Папа Карло»
Гарнитур: студия «Папа Карло»
Бытовая техника: Midea
Освещение: люстра, Intueri Light
Ванная комната
Отделка: плитка под мрамор, Arcana Ceramica; шестигранники, Bestile; плитка под дерево, Cicogres
Напольное покрытие: плитка под мрамор, Arcana Ceramica
Хотите, чтобы ваш проект был опубликован на INMYROOM? Присылайте фотографии интерьера на wow@inmyroom.ru




















