Вкратце
Для организации удобного пространства в двухкомнатной квартире дизайнеры присоединили лоджию к комнате, снесли несколько стен и заменили их легкими перегородками. В цветовой палитре предпочтение отдали нежным пастельным тонам в сочетании с черными аксессуарами и натуральным деревом. Получилось свежо и функционально.
Подробности
Заказчик хотел получить современный, даже молодежный проект. Теплый, насыщенный в цветовом решении, с красивым декором — именно таким он видел будущий интерьер. И дизайнеры Виктория Витковская и Виктория Ступак помогли его реализовать.
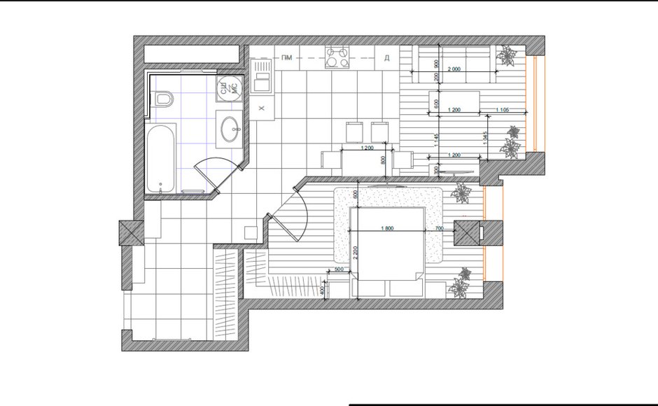
Работу начали с перепланировки: изначально все помещения были изолированные и прямоугольные. Авторы проекта убрали балконный блок и присоединили лоджию к жилому пространству, сделали в ванной и спальне скошенные углы, чтобы получился комфортный проход в кухню-гостиную.
Зонирование пространства организовали с помощью перегородки: она не сплошная, а п-образная, поэтому не утяжеляет интерьер и не препятствует попаданию солнца вглубь квартиры. Такой прием идеален для маленьких пространств.
Для стен использовали краску Little Greenе: она легко ложится на поверхность тонким равномерным слоем, имеет хорошую кроющую способность плюс быстро сохнет. Напольное покрытие — итальянская плитка и паркетная доска Barlinek.
Для хранения вещей спроектировали два вместительных шкафа: в прихожей и в спальне. В ванной комнате установили шкаф с бойлером и стирально-сушильной машиной. Для квартиры в 49 квадратов грамотный функционал каждого помещения очень важен. «Всю мебель мы придумали сами в студии и изготовили на заказ», — говорят дизайнеры.
«В лучших традициях скандинавского интерьера мы обошли стороной излишний антураж, сохраняя баланс между комфортом и эстетикой. Хотелось сделать эту квартиру в первую очередь живой, солнечной и атмосферной. Поэтому здесь светлые стены и разные сценарии освещения: для отдыха, приготовления еды, просмотра телевизора и чтения книг, — рассказывает Виктория Витковская.
Особую атмосферу интерьеру добавляют креативные подносы Ibride, созданные дизайнерами Benoît Convers и Rachel Convers. Мы их придумали использовать как настенный декор в спальне — получилось оригинально.
Планировка
Бренды, представленные в проекте
Гостиная
Отделка: краска, Little Greenе
Напольное покрытие: паркетная доска, Barlinek
Мебель: диван, La forma; обеденные стулья, Sophie décor
Ковер: ИКЕА
Декор: керамический декор, Solovero
Освещение: светильник, Wever & Ducre; бра, Lampe Gras; подвесные светильники, Ferm Living; бра, House Doctor
Спальня
Отделка: краска, Little Greenе
Напольное покрытие: паркетная доска, Barlinek
Мебель: кресло, Normann Copenhagen
Декор: подушка, Ferm; декоративные подносы Ibride, Ment
Хотите, чтобы ваш проект был опубликован на INMYROOM? Присылайте фотографии интерьера на wow@inmyroom.ru













