Вкратце
В оформлении этого интерьера дизайнер сделала ставку на комфортную планировку в духе загородных домов. Пространство разделили на общественную зону кухни-столовой и гостиной и приватную — с мастер-спальней и двумя детскими. Место нашлось и для отдельных систем хранения, и для постирочной.
Подробности
Заказчики жили в Подмосковье, но решили, что детям нужно получить столичное образование, и перебрались в Москву. Для этого купили две соседние квартиры в новом жилом комплексе. В семье было трое сыновей, но к окончанию ремонта родился четвертый ребенок — долгожданная дочь.
Над проектом квартиры работала Инна Арбуа. «По планировке от заказчиков было несколько пожеланий: разделить квартиру на общую и приватную зоны. В приватной должны были появиться три детские комнаты (две спальни и одна игровая), а также спальня родителей с большой гардеробной и отдельным санузлом. По стилистике мне доверились полностью, так как это уже не первый совместный проект», — рассказывает дизайнер.
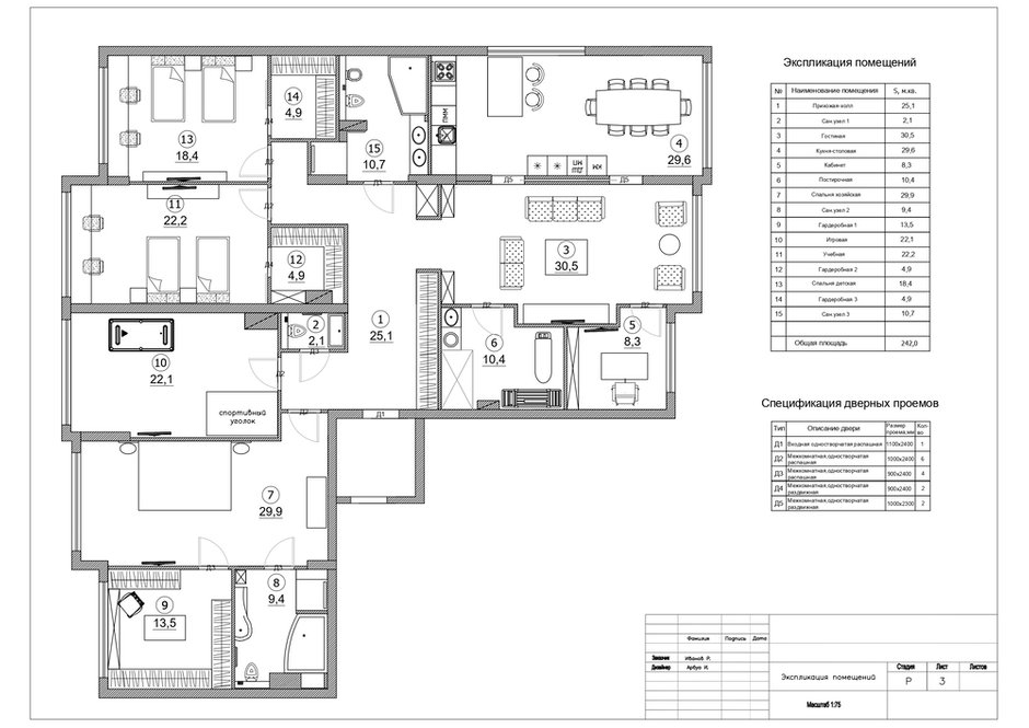
В квартире не было внутренних перегородок, кроме нескольких несущих колонн. В результате планировки сделали просторную гостиную, кухню-столовую, мастер-спальню, две детские, игровую комнату, три санузла.
Из гостиной в зону кухни-столовой идут два проема. Они снабжены стеклянными дверями-купе, которые можно прятать в стены. При этом в закрытом состоянии они смотрятся очень легко за счет стекол с фацетом. Также в гостиной есть еще две двери: одна — в постирочную, вторая — в небольшой кабинет. Они расположены симметрично, поэтому выглядят как декоративные элементы. Благодаря этому нет ощущения проходной зоны.
Квартира оборудована сложной системой приточно-вытяжной вентиляции. В некоторых местах из-за нее пришлось опускать потолок на 25 сантиметров. «Мы работали совместно с профи, занимающимися вентиляцией, разработали такой проект потолков, чтобы опуск не был критичным и не давил визуально. Это относится и к расположению вентиляционных решеток», — говорит Инна Арбуа.
Сначала заказчик хотел разместить кухню-столовую ближе к входу в квартиру. И у него были веские аргументы: семья большая, покупают много продуктов, и он хотел, чтобы холодильник находился как можно ближе к прихожей. Но в итоге согласовали расположение кухни в дальней части квартиры — и не пожалели.
В квартире три санузла: хозяйский, детский и гостевой. В детской ванной нужно было разместить и ванну, и душевую. Из-за разного роста детей дизайнер сделала раковины на разной высоте от пола. Плюс добавили писсуар.
В отделке дизайнер использовала преимущественно натуральные отделочные материалы: на стенах гипоаллергенная краска, которую можно мыть, бумажные обои и фрески в детских комнатах. Полы в жилых зонах — это модульный паркет из американского ореха.
С местом для хранения проблем не было. Площадь квартиры позволила разместить три полноценные гардеробные. Большая хозяйская — с окном, вход в нее из спальни. Системы хранения сделаны из ореха под заказ в местной мастерской. При двух детских тоже есть свои гардеробные: за счет этого удалось избежать большого количества шкафов. Также выделили место для отдельной постирочной — это удобно.
«Семья раньше жила в Подмосковье, в месте, где вокруг природа. Несмотря на урбанистический пейзаж за окном квартиры, мы хотели сохранить ощущение загородной спокойной жизни. Холодные оттенки бирюзы и синего символизируют воду. Растительная тема прослеживается в цвете кресел в гостиной, в принте на стене в кухне, в живых растениях. Баланс теплых и холодных цветов, различных интересных фактур, натуральных материалов сделал свое дело — квартира получилась уютной, спокойной, но нескучной», — рассказывает Инна Арбуа.
Основным принципом в выборе мебели были комфорт и удобство. Кухонный гарнитур состоит из двух отдельных частей: одна — это блок с верхними шкафами, фасады из матового стекла открываются от электропривода. С первого взгляда кажется, что здесь нет вытяжки: на самом деле она встроена в столешницу рядом с варочной поверхностью. Это позволило сэкономить много места в верхней части шкафов.
Вторая часть кухни — это колонны-пеналы, где разместили основную часть встраиваемой техники, а также кулер для воды. В столовую подобрали большой стол, за которым разместится вся семья. Гостиную решили не перегружать и оставить только необходимое для отдыха: диван, кресла, тумбу с телевизором.
В детских комнатах поставили только кровати и стеллажи. «Самым необычным пожеланием заказчиков стала кровать шириной три метра, — делится дизайнер. — Детей много, и они часто прибегали спать к родителям, поэтому места не хватало. В итоге мы реализовали трехметровую кровать. Делали ее, конечно, на заказ».
Часть декора дизайнер брала на примерку, чтобы на месте понять, какой из них вписывается идеально. «Я поехала в галерею, чтобы отобрать живопись для этого объекта, нашла несколько работ для гостиной, которые могли бы подойти. И на всякий случай взяла работу, на первый взгляд, темную и не в нашей цветовой гамме. Стоит ли говорить, что именно эта картина оказалась лучше всего», — говорит Инна Арбуа.
Планировка
Бренды, представленные в проекте
Холл
Отделка: краска, Farrow & Ball
Напольное покрытие: модульный паркет из ореха, LabArte
Мебель: Yachtline (Россия)
Декор: KARE
Гостиная
Отделка: краска, Farrow & Ball
Напольное покрытие: модульный паркет из ореха, LabArte
Мебель: тумба, Giulia Novars; консоли, Eichholtz
Ковер: Art de Vivre
Текстиль: Anka
Освещение: Eichholtz
Спальня
Отделка: краска, Farrow & Ball
Напольное покрытие: модульный паркет из ореха, LabArte
Мебель: тумбы и комод, Yachtline
Текстиль: Anka
Детская
Отделка: краска, Farrow & Ball; фреска, Affresco
Напольное покрытие: модульный паркет из ореха, LabArte
Ковер: Art de Vivre
Текстиль: Anka
Декор: KARE
Освещение: Eichholtz
Кухня
Отделка: краска, Farrow & Ball; фреска, Affresco
Напольное покрытие: плитка на полу, Porcelanosa
Мебель: обеденный стол, Team7; cтулья барные, Eichholtz
Гарнитур: кухня, Giulia Novars
Бытовая техника: Miele
Смесители: Blanco
Освещение: Eichholtz
Ванная комната
Отделка: плитка, Porcelanosa
Напольное покрытие: плитка, Porcelanosa
Мебель: Laufen
Смесители: Hansgrohe
Хотите, чтобы ваш проект был опубликован на INMYROOM? Присылайте фотографии интерьера на wow@inmyroom.ru







































