Вкратце
В этой трехкомнатной квартире нельзя было сделать перепланировку, но дизайнеры сделали ставку на удобную и функциональную расстановку мебели и продуманные системы хранения на заказ. А за счет пастельной цветовой палитры пространство кажется еще больше.
Подробности
Заказчица купила себе квартиру недалеко от дома, где живут ее дочь и внук, и попросила дизайнеров из студии Lines создать интерьер, в котором будет удобно и ей, и гостям.
Хозяйка любит готовить, поэтому просила обустроить функциональную кухню плюс предусмотреть полноценное обеденное место для большой компании. Помимо спальни нужна была гостевая комната: она должна «расти» вместе с внуком, но при этом не быть слишком детской, чтобы здесь могли остановиться друзья заказчицы и родственники.
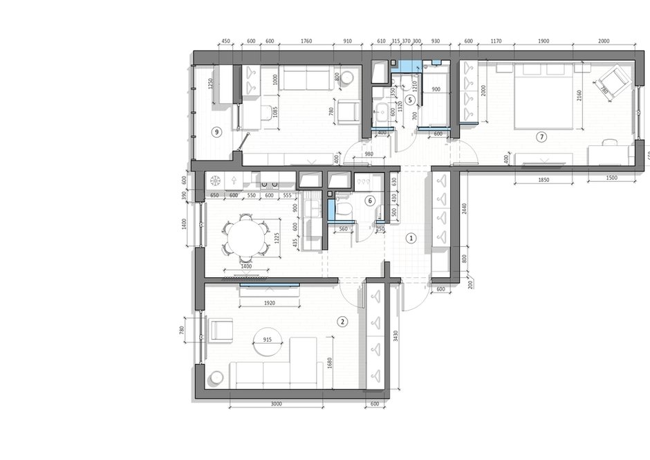
Из-за наличия внутренних несущих стен перепланировка была невозможна. Удалось только расширить санузлы за счет коридоров — здесь их два. Дальние комнаты отдали под спальню и гостевую. В гостиной расположили удобную ТВ-зону с диваном, а в кухне поставили раскладной обеденный стол.
«Заказчица просила оформить интерьер в „самых светлых тонах в цветовых веерах“, чтобы квартира была максимально светлой, но в то же время яркой и уютной», — рассказывают дизайнеры. Они выбрали пастельные розовые, зеленые и голубые оттенки краски, но все равно предложили сделать яркие акценты с помощью обоев. Так в спальне и гостевой появились активные растительные принты. На пол положили ламинат, а для санузлов взяли светлую плитку и керамогранит.
В квартире очень удобная прихожая: гардеробный шкаф имеет сиденье, открытую нишу для обуви, скрытый ящик под электрощиток и роутер, полки для мелочей и закрытое отделение под зонты. Все остальные системы хранения довольно стандартные: помимо этого в шкаф в гостиной встроили гладильную доску, а в шкаф в гостевой — принтер. В интерьере минимум открытых полок: заказчица была против «пылесборников». По этой же причине дизайнеры полностью отказались от подоконников.
«Фишка проекта — все столярные изделия сделаны на заказ из мебельной фанеры высокого класса, — рассказывают дизайнеры. — Мягкую мебель и стулья мы нашли у SK Design. В оформлении мы придерживались минимализма, поэтому в интерьере почти нет декора, привычных штор и комнатных растений».
Планировка
Бренды, представленные в проекте
Холл
Отделка: краска, Dulux; обои, Cole & Son
Напольное покрытие: ламинат, Pergo
Освещение: Archpole
Гостиная
Отделка: краска, Dulux
Напольное покрытие: ламинат, Pergo
Спальня
Отделка: краска, Dulux; обои, Borastapeter
Напольное покрытие: ламинат, Pergo
Освещение: Cosmo
Детская
Отделка: краска, Dulux; обои, Вorastapeter
Напольное покрытие: ламинат, Pergo
Освещение: Cosmo
Кухня
Отделка: плитка на фартуке, 41zero42
Напольное покрытие: керамогранит, Italon
Освещение: Cosmo
Ванная комната
Отделка: керамогранит, Italon; 41zero42
Напольное покрытие: керамогранит, Italon
Смесители: Нansgrohe
Хотите, чтобы ваш проект был опубликован на INMYROOM? Присылайте фотографии интерьера на wow@inmyroom.ru































